Bury Road, Thetford IP24
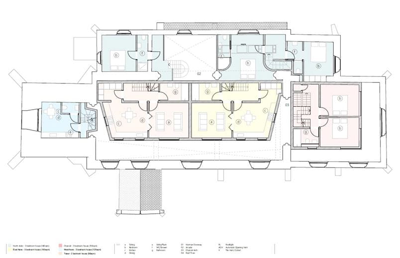
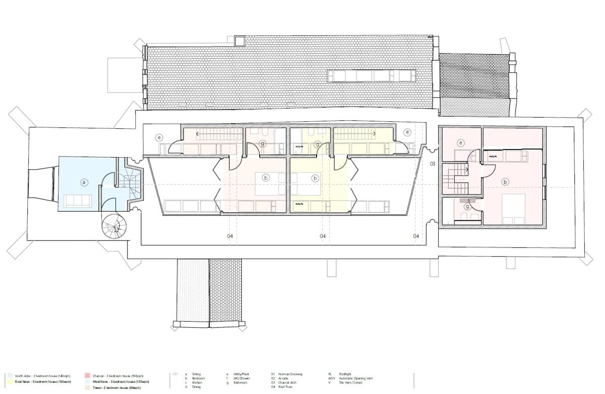
Chance to acquire a unique development opportunity to convert a historic church into 5 dwellings including 4no 3-bedroom homes & a 2-bedroom home. Full planning permission was granted in November 2024 to convert the property, retaining the structure of the existing building.
 Opportunity 
The chance to acquire a unique development opportunity to convert a historic church into 5 dwellings. The Church of St Mary the Less can trace its foundation back to 11th Century, with the fabric of the building predominantly from 14th Century and a rebuild in 19th Century.
Full planning permission was granted in November 2024 to convert the property into five separate dwellings, retaining the structure of the existing building.
 Overview  
While the Church of St Mary the Less does not appear in the Doomsday Survey of 1080, it is likely that it has existed in some form since the Saxon period. The building has evolved over time with several additions and repairs, but the Norman doorway and the north nave wall, constructed in c.1100, still stand to this day.
The majority of the existing structure was built in the 14th Century, with various reconstruction work and repairs undertaken in the following centuries. This work included the reconstruction of the west tower in the 15th Century, making it the tallest church tower in Thetford at the time.
The church was made redundant and closed in 1987, after which it fell into disrepair and passed through various owners.
The property was purchased by Freeman Historic Properties Ltd in December 2014. Freeman Historic Properties Ltd was formed in 1992 and specialises in the acquisition of outstanding but at-risk listed buildings for restoration and eventual resale. Proceeds from the sale of properties go towards future restoration projects.
Since acquiring the site, Freeman Historic Properties has undertaken repair works to the tower and the roof, and has made the site secure. Planning permission and listed building consent was achieved in November 2024 to convert the church into five dwellings and secure a long-term future for the building.
A book containing details of the history of the Church of St Mary the Less, and the town of Thetford can be found in the sales pack (access is available on request).
 Location 
The property is located just a short walk from the centre of the historic market town of Thetford. 
Thetford is situated 12 miles north of Bury St Edmunds, 25 miles from Norwich. 
Thetford benefits from a wide range of services, amenities and employers. The site is a short walk from the picturesque parkland along the River Thet.
Thetford Railway Station is a 15-minute walk from the property and provides direct access to Norwich in 30 minutes and Cambridge in 45 minutes.
The site is easily accessed from the A11, which provides routes to Norwich and Newmarket, and provides connections to the A14 and M11.
The nearby Thetford Forest provides opportunities for outdoor recreation.
 Description 
The property extends to approximately 0.97 acres (0.39 hectares) and is comprised of the church building and churchyard. It is bounded by Bury Road to the north and east, residential properties to the south, and St Mary’s Court to the west, which provides vehicular access to the site.
The property is well screened by established trees around the perimeter. The churchyard has recently become overgrown with low-level vegetation and scrub.
Pedestrian access to the site can be taken from Bury Road. The proposed vehicle access to the site is taken from St Mary’s Court.
 Planning 
The site benefits from full planning permission (reference: 3PL/2024/0004/F) and listed building consent (reference: 3PL/2024/0005/LB), both granted by Breckland District Council in November 2024.
Permission is granted for the conversion of the church into five dwellings, retaining the structure of the building. Proposals feature 4no. three-bedroom houses, and a two-bedroom house within the church tower. Each dwelling will have its own access, either externally or from a communal foyer.
Access to an information pack providing planning and technical information on the opportunities can be provided on request.
 Tenure 
The site will be sold Freehold with vacant possession on completion and is held under Title number NK308226. 
 Easements, Wayleaves and Rights of Way  
The property is sold subject to and with the benefit of all public and private rights of way, wayleaves, and easements whether or not specifically mentioned.
 Services 
 
Interested parties are advised to make their own enquiries regarding services capacities and connections.
 Value Added Tax 
The property has [not] been elected for VAT.
 Method of Sale 
The property is offered for sale by private treaty. 
Offers should be submitted by email to Dominic Bryant at dominic.bryant@carterjonas.co.uk and should provide the following information:
• The identity of the Purchaser;
• The level of financial offer including the level of deposit to be paid on exchange;
• Proof of funding;
• Due diligence undertaken;
• Timeframe to exchange and completion;
• Details of the solicitor you will be using for this transaction;
• Confirmation of any further approvals required prior to exchange.
The Landowner reserves the right not to accept the highest, or indeed, any offer.
 Viewings 
Access to the site is strictly by appointment only, and should be arranged through Carter Jonas. 
The exterior of the property can be viewed from the public highway, and interested parties wishing to view will have to take appropriate care and attention. The Landowner and their Agent are not liable for the safety of parties inspecting the site.
 Biodiversity Net Gain (BNG) 
Should you require any information regarding Biodiversity Net Gain (BNG) or BNG units for this site, please contact:
David Alborough on 07824 590874 and David.Alborough@carterjonas.co.uk
 New Homes 
For information regarding New Homes sales values, please contact:
Jason Capel on 07973 679823 and Jason.Capel@carterjonas.co.uk
 Postcode  
Nearest Postcode: IP24 3AP
what3words: ///fury.withdraw.contemplate
 Contact details 
Should you require any further information please contact the Sole Selling Agents:
 
Dominic Bryant:
Tel: 07393 269450
Email: Dominic.Bryant@carterjonas.co.uk
- Location
- Village
- Carter Jonas reference
- CNH250103
