Moorside, Sturminster Newton DT10

Moorside, Sturminster Newton DT10

Freehold | Outbuildings

Guide price £1,500,000
Gillingham 4.7 miles
St Gregorys Church 1.2 miles
Sturminster High School 2.4 miles

A privately situated residential and equestrian farm with a period farmhouse, flat and studio, adjoining barn and stabling, further buildings, riding school and land. In all extending to 19.41 acres. For sale as a whole or in two separate lots.

Hayters Farm, Moorside, Sturminster Newton, Dorset, DT10 1HQ

A well situated residential and equestrian farm.

Hayters Farm comprises a privately situated residential farm with an attractive period farmhouse with large garden, driveway, and large pond, flat and studio, adjoining barn and stabling, further traditional outbuilding, substantial steel framed modern building and further yard area, riding school, and surrounding pastureland. In all extending to 19.41 acres.

For sale by private treaty as a whole or in two separate lots with Lot 1 comprising the farmhouse, buildings, and about 10 acres.

Hayters Farm is conveniently situated a short distance from the village of Marnhull which offers a range of local facilities including a primary school, public houses, and surgery. The nearby town of Sturminster Newton offers further facilities whilst the larger towns of Shaftesbury, Gillingham, Wincanton, and Sherborne are also within easy reach, and offer a wider range of business, recreational and shopping facilities. The property benefits from easy access to the A303 at Wincanton with rail services to London available from Gillingham (Waterloo) and Castle Cary (Paddington). Locally, airports are available at Bournemouth and Bristol. The area is well serviced by a good range of schools in both the state and independent sectors including the Sherborne Schools, Leweston, Bryanston, Perrot Hill, Hazlegrove, and Canford.


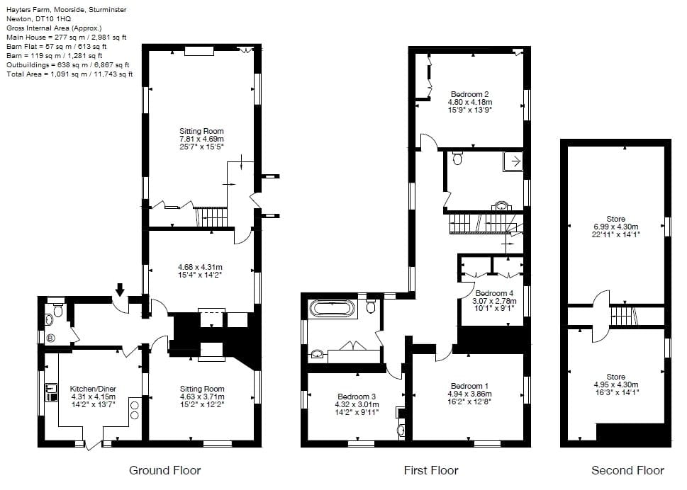
Farmhouse
Constructed of local stone elevations under a tiled roof, Hayters Farmhouse provides light and airy accommodation comprising, on the ground floor, door to entrance hall with WC off, kitchen and breakfast room, study/snug with open fireplace, dining room with open fireplace, leading through to a large double aspect sitting room with fireplace, front door to porch and garden, and stairs to the first floor. On the first floor, the landing leads to the principal bedroom with fitted wardrobes, together with three further bedrooms, and two family bathrooms. Stairs lead from the first floor landing to the second floor which provides a substantial loft space currently divided to provide two storage rooms which offer potential to provide further accommodation if desired. Outside, the farmhouse is surrounded by spacious lawned gardens to the front, including a pond, pergola, and greenhouse. To the rear is a large, gravelled driveway offering ample space for parking, with adjoining outbuildings described below. In addition, situated to the north of the entrance drive is a substantial attractive pond.


Barn Flat
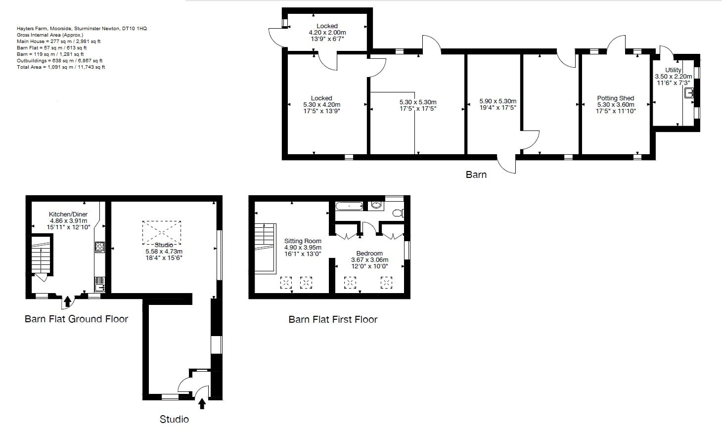
Situated a short distance from the farmhouse is a flat which has been converted in part of the principal barn. This provides accommodation comprising, on the ground floor, kitchen and breakfast room, with a sitting room, adjoining bedroom, and bathroom, on the first floor, with roof-lights providing ample natural light.


Studio
Adjoining/below the Barn Flat, at the eastern end of the principal barn, is a studio providing entrance hall/self-contained office space, leading through to the studio space with an abundance of natural light from a roof-light and double doors.


Buildings
The principal barn, much of which has been converted to provide the Barn Flat and Studio as described above, is constructed of stone elevations under a tiled roof and provides an open storage space with vaulted ceiling, ideal as a ‘party barn’ or for other such uses, with full-height timber sliding doors. Adjoining the principal barn is a further barn, also of stone and tile, providing stabling with a storage lean-to to the rear. Situated to the rear of the farmhouse is a single storey stone and tile barn providing a utility space, secure tack room, staff room, and associated storage. Adjoining this barn is an outdoor riding school (40m x 20m) with associated fenced yard and adjoining covered yard/shelter. Forming the rear of the yard is a substantial four bay steel framed machinery store/loose housing shed with concrete floor.


Land
The land comprises generally level pastureland suitable for grazing and mowing. There is one pasture paddock to the north of the farmstead with the remainder of the land lying to the south and divided to provide four principal pasture enclosures. The property is offered for sale as a whole, comprising 19.41 acres, or as Lot 1, without the two southern field enclosures, therefore totalling 10.78 acres.


Method of sale
The property is offered for sale by private treaty as a whole or in two separate lots.

The guide price for the whole is £1,500,000. The guide price for Lot 1 is £1,400,000.


Tenure & Possession
The freehold of the property is offered for sale with vacant possession available upon completion.


Services
The property is serviced by mains electricity and water with private drainage. The farmhouse is serviced by oil-fired central heating.


Health & Safety
Potential purchasers should take particular care when inspecting the holding, being mindful of livestock and machinery movements, especially in and around the farm buildings, as well as potentially uneven, steep, and slippery surfaces.


EPC Ratings
Hayters Farmhouse has an EPC rating of F and the Flat has an EPC rating of G.


Local Authorities
Dorset Council


Listing Status
The house is listed Grade II.


Viewings
Viewings are by appointment with Carter Jonas on 01823 428590.


Directions
Heading east towards Shaftesbury on the A30, turn right at East Stour signed Todber, Marnhull, and Sturminster Newton. Just before the village of Marnhull, turn left signed Moorside, Margaret Marsh, and Manston. Follow this road for about one mile and the entrance to Hayters Farm will be found on the right-hand side, shortly after the right-hand bend.


What3Words
///Promising.slate.weeps

The next steps...

Before making an offer on a property you will want to consider your financial situation, your income and outgoings.

Will you finance the purchase of your next property from the sale of an existing property which can put you in a chain, arrange a mortgage through your bank or buy the property outright.

To help you finance your next property purchase, we have a long established relationship with an independent mortgage broker who can discuss your situation with you.

Remember that having a 'mortgage decision in principle' can make you a more attractive buyer when you make an offer on a property. Contact our mortgage advisers for free, no obligation and impartial advice.

Some advantages of a broker are:

  • They do all the legwork for you, working on your behalf with the lender
  • They compare wholesale mortgage rates from a large number of banks and lenders all at once
  • Their wholesale interest rates can be lower than retail (bank branch) interest rates
  • They offer more loan options because they work with numerous banks and lenders
  • They can finance tricky deals because of their knowledge and various lending partners
  • They are typically easier to get in contact with, and are less bureaucratic.

However advantages of working with your bank are:

  • You may be able to build off an existing relationship (and gain discounts if you have a checking or savings account)
  • You may already know the banker who will handle your mortgage
  • Banks may be more accountable than a smaller shop
  • They may offer lower interest rates in some cases
  • Their ability to add mortgage to existing banking profile and make automatic payments from linked account.

When you see a property you are interested in on our website, call us 24/7 to arrange a viewing. Or if you prefer, get in touch via our website and we will call you back to find a time to view the property that suits you.

Once you’ve found a property you want to buy, it’s time to make an offer. A bit of negotiation is to be expected, however don't offer so little that you end up in a lengthy negotiation process, as you might lose the property altogether if someone else makes a higher bid.

If other offers have been made on a property we aren't legally able to tell you what they are, but we may indicate if they were close to the asking price.

If you have a property to sell, why not see how we can help you.

Or if you’re considering letting your property, we can take the stress out of managing your rental, and our award winning lettings team offer a service that can be tailored to your needs.

Combined with nearly 170 years of experience and one of the highest customer satisfaction scores in the industry, Carter Jonas is the perfect property partner.

Why not book a free, no obligation valuation of your property and find out how Carter Jonas can help you make your next move.

Key property details
Additional attributes
Outbuildings
Tenure
Freehold
Total sq ft
845,499.6 (78,549.6 Sq M) approx.
Carter Jonas reference
TAU240074

Suggested properties

Here are a few properties you might like, but within 2 extra miles of your current search

Guide price £425,000
4 bedroom house
Guide price £375,000
4 bedroom cottage
Guide price £1,400,000
house
Thinking of selling?

Find out what your property is worth