Foxmore Street, London SW11

Foxmore Street, London SW11

2 Bedroom | Share of Freehold | 1 Bath

Guide price £825,000
Harling Court 0.1 miles
Groveside Court 0.6 miles

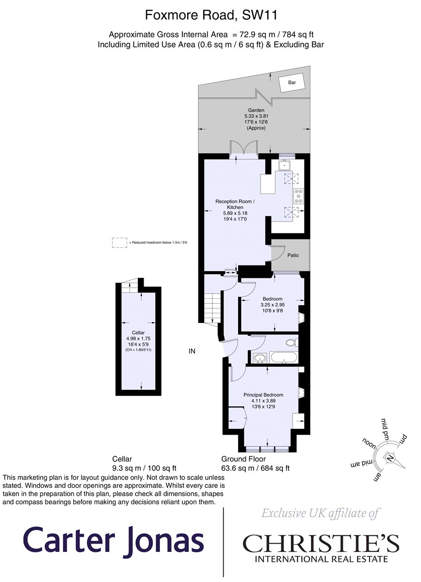
Immaculate two double bedroom ground floor flat, with south-westerly patio garden, located on a quiet road, just 272 feet from Battersea Park. Share of Freehold.

This beautiful Victorian conversion benefits from a fantastic location, great space and high specification. The fantastic open plan living room, kitchen and dining space at the rear, overlooking the garden, is ideal for laidback living and entertaining. The anthracite cabinetry compliments the pale quartz worktops, with SMEG Range cooker and appliances neatly integrated. Light wooden floorboards run underfoot. Crittall-style aluminium doors connect the inside to the paved southwest-facing garden. The space is ideal for relaxing and entertaining, and the shed/beach bar makes a fun addition.

Back inside, the primary bedroom to the front of the property is calm and neutral, with fantastic volumes and ceiling height and a great quality of light. An original Victorian fireplace is flanked by bookshelves and storage cupboards, with a lovely window seat, combining comfort with bespoke storage beneath. Wooden Boston blinds dress the windows, with large built-in wardrobes completing the space. The second double bedroom, currently used as an office, overlooks the courtyard area. A well-appointed bathroom is located between the bedrooms. The flat also benefits from a 100sqft cellar, which provides helpful further storage space.

The property is offered with Share of Freehold.

Foxmore Street is a quiet residential street, located just 272 feet (0.1 mile) from Battersea Park, with over 200 acres of leisure and sporting facilities. It offers easy access to Chelsea (0.8 mile), just across Albert Bridge, and Battersea Power Station which provides a range of retail, leisure and dining amenities. The property is ideally situated for rail networks, with Battersea Park (0.8 mile), one stop away from Victoria Station and Queenstown Road (0.9 mile), two stops away from Waterloo. Also nearby is Clapham Junction (0.9 mile), as well as Battersea Power Station Underground (1.1 miles) on the Northern Line.

The next steps...

Before making an offer on a property you will want to consider your financial situation, your income and outgoings.

Will you finance the purchase of your next property from the sale of an existing property which can put you in a chain, arrange a mortgage through your bank or buy the property outright.

To help you finance your next property purchase, we have a long established relationship with an independent mortgage broker who can discuss your situation with you.

Remember that having a 'mortgage decision in principle' can make you a more attractive buyer when you make an offer on a property. Contact our mortgage advisers for free, no obligation and impartial advice.

Some advantages of a broker are:

  • They do all the legwork for you, working on your behalf with the lender
  • They compare wholesale mortgage rates from a large number of banks and lenders all at once
  • Their wholesale interest rates can be lower than retail (bank branch) interest rates
  • They offer more loan options because they work with numerous banks and lenders
  • They can finance tricky deals because of their knowledge and various lending partners
  • They are typically easier to get in contact with, and are less bureaucratic.

However advantages of working with your bank are:

  • You may be able to build off an existing relationship (and gain discounts if you have a checking or savings account)
  • You may already know the banker who will handle your mortgage
  • Banks may be more accountable than a smaller shop
  • They may offer lower interest rates in some cases
  • Their ability to add mortgage to existing banking profile and make automatic payments from linked account.

When you see a property you are interested in on our website, call us 24/7 to arrange a viewing. Or if you prefer, get in touch via our website and we will call you back to find a time to view the property that suits you.

Once you’ve found a property you want to buy, it’s time to make an offer. A bit of negotiation is to be expected, however don't offer so little that you end up in a lengthy negotiation process, as you might lose the property altogether if someone else makes a higher bid.

If other offers have been made on a property we aren't legally able to tell you what they are, but we may indicate if they were close to the asking price.

If you have a property to sell, why not see how we can help you.

Or if you’re considering letting your property, we can take the stress out of managing your rental, and our award winning lettings team offer a service that can be tailored to your needs.

Combined with nearly 170 years of experience and one of the highest customer satisfaction scores in the industry, Carter Jonas is the perfect property partner.

Why not book a free, no obligation valuation of your property and find out how Carter Jonas can help you make your next move.

Key property details
Property attributes
Terraced Ground Floor
Era
Period
Additional attributes
Garden
Tenure
Share of Freehold
Energy efficiency rating
C
Carter Jonas reference
WNS240115

Suggested properties

Here are a few properties you might like, but within 2 extra miles of your current search

Asking price £900,000
2 bedroom cottage
Asking price £800,000
2 bedroom flat
Asking price £750,000
2 bedroom house
Asking price £825,000
2 bedroom flat
Asking price £800,000
2 bedroom flat
Asking price £765,000
2 bedroom flat
Asking price £825,000
2 bedroom flat
Asking price £825,000
2 bedroom flat
Asking price £750,000
2 bedroom flat
Guide price £900,000
2 bedroom flat
Guide price £825,000
2 bedroom flat
Asking price £900,000
2 bedroom flat
Thinking of selling?

Find out what your property is worth