The Oak Building, Rudduck Way CB3

The Oak Building, Rudduck Way CB3

2 Bedroom | 2 Baths

£1,850 per month £427 per week
Cambridge 2.8 miles
Cambridge North 3 miles
Girton Road 0.4 miles

A stunning 2 bedroom apartment situated in this popular development just to the North West of Cambridge. Amtico flooring and under floor heating. Unfurnished.

A stunning 2 bedroom apartment situated in this popular development just to the North West of Cambridge.

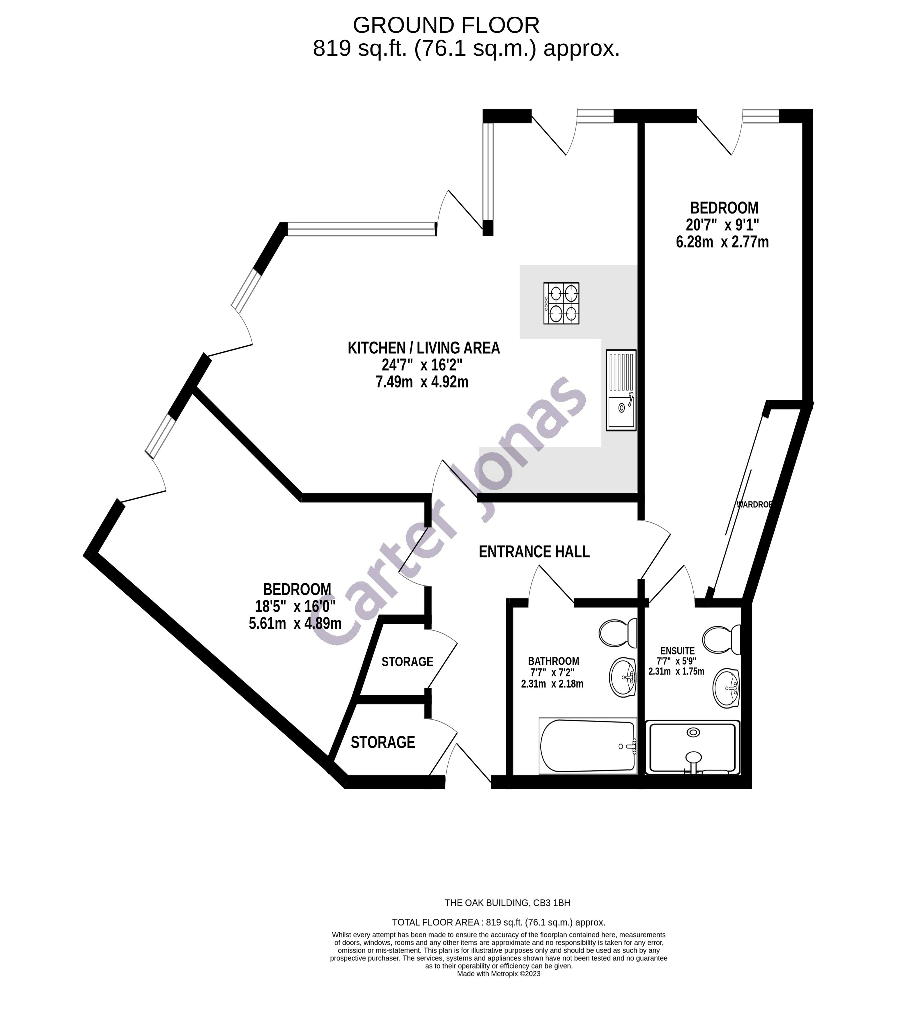
The property features entrance hallway with cupboard housing washing machine, an open plan living room with fully integrated kitchen with quartz worktop to include dishwasher, fridge-freezer, oven and hob. There is a door leading to a private balcony.

Principal bedroom with built in wardrobes and ensuite shower room. Further double bedroom and a stylish family bathroom with shower over bath.

Amtico flooring and under floor heating.

Secure parking space.

Unfurnished.

Council Tax Band - D. However we would advise you to clarify the council tax band on http://www.gov.uk/council-tax-bands.

The holding deposit for the property will be £426 and the deposit £2,130.00 subject to the rent being as advertised at £1,850 per month.

Eddington is perfectly located for those wanting easy access into the City. The A14 & M11 are with a few minutes’ drive and there are various public transport connections available all within walking distance. There are restaurants, hotels and a Sainsbury's superstore.

The next steps...

Before making an offer on a property you will want to consider your financial situation, your income and outgoings.

Will you finance the purchase of your next property from the sale of an existing property which can put you in a chain, arrange a mortgage through your bank or buy the property outright.

To help you finance your next property purchase, we have a long established relationship with an independent mortgage broker who can discuss your situation with you.

Remember that having a 'mortgage decision in principle' can make you a more attractive buyer when you make an offer on a property. Contact our mortgage advisers for free, no obligation and impartial advice.

Some advantages of a broker are:

  • They do all the legwork for you, working on your behalf with the lender
  • They compare wholesale mortgage rates from a large number of banks and lenders all at once
  • Their wholesale interest rates can be lower than retail (bank branch) interest rates
  • They offer more loan options because they work with numerous banks and lenders
  • They can finance tricky deals because of their knowledge and various lending partners
  • They are typically easier to get in contact with, and are less bureaucratic.

However advantages of working with your bank are:

  • You may be able to build off an existing relationship (and gain discounts if you have a checking or savings account)
  • You may already know the banker who will handle your mortgage
  • Banks may be more accountable than a smaller shop
  • They may offer lower interest rates in some cases
  • Their ability to add mortgage to existing banking profile and make automatic payments from linked account.

When you see a property you are interested in on our website, call us 24/7 to arrange a viewing. Or if you prefer, get in touch via our website and we will call you back to find a time to view the property that suits you.

Once you’ve found a property you want to buy, it’s time to make an offer. A bit of negotiation is to be expected, however don't offer so little that you end up in a lengthy negotiation process, as you might lose the property altogether if someone else makes a higher bid.

If other offers have been made on a property we aren't legally able to tell you what they are, but we may indicate if they were close to the asking price.

If you have a property to sell, why not see how we can help you.

Or if you’re considering letting your property, we can take the stress out of managing your rental, and our award winning lettings team offer a service that can be tailored to your needs.

Combined with nearly 170 years of experience and one of the highest customer satisfaction scores in the industry, Carter Jonas is the perfect property partner.

Why not book a free, no obligation valuation of your property and find out how Carter Jonas can help you make your next move.

Key property details
Property attributes
Ground Floor
Era
Modern
Locality
Town/City
Energy efficiency rating
B
Letting fees
Download Letting Fees
Total sq ft
850 (79 Sq M) approx.
Carter Jonas reference
CAL230161

Suggested properties

Here are a few properties you might like, but within 2 extra miles of your current search

£2,200 pcm £508 p/w
5 bedroom house
£3,700 pcm £854 p/w
4 bedroom house
£1,450 pcm £335 p/w
1 bedroom flat
£2,000 pcm £462 p/w
4 bedroom house
£2,450 pcm £565 p/w
1 bedroom flat
£2,400 pcm £554 p/w
3 bedroom flat
£1,700 pcm £392 p/w
1 bedroom flat
£1,900 pcm £438 p/w
1 bedroom flat
£2,100 pcm £485 p/w
2 bedroom flat
Thinking of selling?

Find out what your property is worth