Sarnau, Bala LL23

Sarnau, Bala LL23

Outbuildings | Secondary Accomodation | Character Property | Holiday Complex

Guide price £1,395,000
The Bull 4 miles

An immaculate and well established holiday accommodation business including a principal farmhouse and four holiday cottages on the edge of the Eryri National Park.

An immaculate and well established holiday accommodation business including a principal farmhouse and four holiday cottages on the edge of the Eryri National Park.

Pencefn presents a unique and exciting opportunity to purchase an attractive rural property with diversified holiday accommodation income streams. All situated in a stunning and unspoilt area of North Wales, the property is an ideal family home paired with an on-site business choice or equally will appeal to those seeking a pure holiday accommodation investment.

In all extending to approximately 7 acres.

For sale by private treaty as a whole.

Location
Pencefn is located in a rural location on the periphery of the village of Sarnau, near Bala in North Wales. The village is situated off the A494 between Bala and Corwen where it enjoys a pleasant countryside location.

Within a short drive is the A5 trunk road which allows easy access to the University City of Wrexham, the popular towns of Llangollen and Ruthin and links to the national motorway network. A direct train link from Wrexham General to London takes approximately 2½ hours.

Amenities
The market town of Bala is within easy reach and offers a range of shops, public houses and administrative services. National retailers and supermarkets are available at Ruthin and Llangollen.

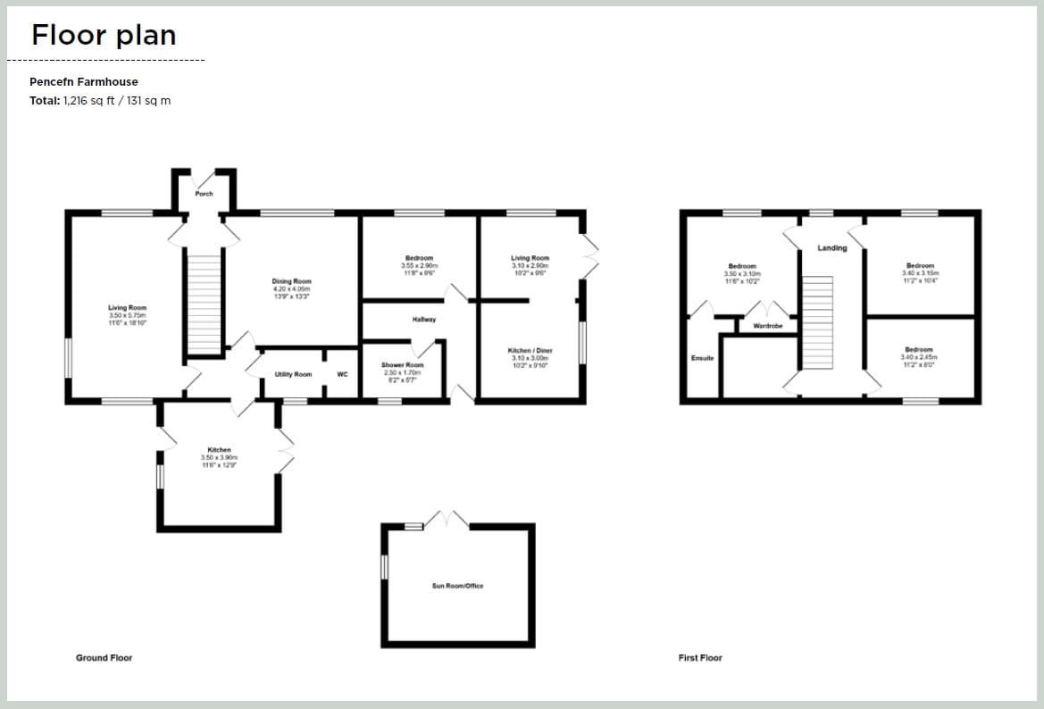
Farmhouse
Pencefn Farmhouse is an attractive traditional Welsh stone farmhouse which is the centrepiece of Pencefn. As a family home it manages to combine the features of a traditional farmhouse with bright modern living space which is spacious throughout. The entire property has undergone a recent programme of renovation with the internal space finished with an eye to detail and to an exceptionally high standard with a mixture of modern décor whilst retaining many traditional features.

The accommodation briefly comprises of a new kitchen, a living room with a multi-fuel stove and a stone featured chimney breast and a former dining room also with a multi-fuel stove. On the first floor there are three good sized bedrooms, of which one is ensuite, and a bathroom.

The property really is a turn-key opportunity and ready for any new owner to move into straight away. Externally there is a paved seating area and from the front door there are breathtaking views of Bala and the mountains of Eryri. Pencefn Farmhouse is perfect for outside living with a real sense of splendid isolation and will be a delight to families whilst equally suited to outside entertaining with friends or guests.

Adjoining the Farmhouse is further accommodation known as Hafod Las which is self contained and currently utilised as a separate holiday accommodation unit. That said, it forms part of the farmhouse and could provide further living accommodation for any owner.

The Holiday Accommodation
Pencefn is a well established holiday accommodation business that has been awarded 4 stars by Visit Wales.
The holiday accommodation is situated around the former farmyard at the heart of the property and extends to four self catering units. Each is of stone construction and retain many traditional features whilst still offering comfortable holiday accommodation. Each cottage has its own dedicated outside space making them ideal for families and those that want to bring their dog on holiday.

Hafod Las
Hafod Las forms the Annexe adjoining the farmhouse which can be used as separate holiday accommodation or could form part of the living accommodation for the farmhouse.

The accommodation is arranged over one floor with an entrance through double French doors. The accommodation extends to an open plan living room, kitchen and dining area, a bathroom with a walk in shower and a double bedroom. The space is modern and practicable and we understand is DDA compliant with all the doors opening two ways and being wide enough to accommodate a wheelchair.

Y Llaethdy
Y Llaethdy is semi-detached, traditional Welsh cottage and was the former working dairy. Arranged over a single floor, the accommodation comprises an open plan dining, lounge and galley kitchen area with pretty furnishings, a bathroom and a double bedroom with a further self contained single bedroom.

The internal space at Y Llaethdy is airy, modern and is a popular holiday accommodation choice for guests.

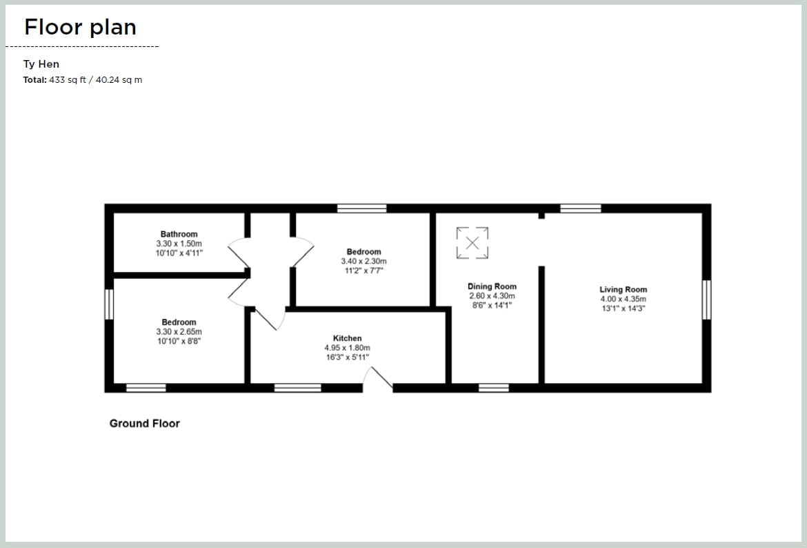
Ty Hen
Ty Hen sleeps four guests over a single floor and extends to a living room, a lounge, a bathroom, a double room and a twin room. The property has a plethora of traditional features which have retained the authenticity of the original dwelling at Pencefn.

Ty Gwennol
Ty Gwennol is the larger of the accommodation units with fine views of the gardens and the Berwyn mountain range. Again the unit retains its traditional features whilst providing comfortable living space. The accommodation extends to lounge, a kitchen diner and three bedrooms which can sleep up to 6 people.

There is also a games room / laundry room for guests which is also accessed from the farmyard. In addition, complementing the holiday accommodation are extensive gardens that are available to guests with fine views of the countryside.

Camper Vans
A relatively new addition to the business has been the construction of 5 campervan / motorhome pitches with electrical hookups.

With the recent rise of campervan visitors to North Wales we anticipate the market for such pitches to continue to go from strength to strength.

Buildings
We understand that planning permission was secured in 2015 to convert the remaining outbuilding (the Granar) into a two bedroom holiday unit. Furthermore, the consent has been secured following the commencement of the works with the first building regulations inspection having occurred.

There is a 90m² steel portal frame shed situated at the property which provides a very versatile space for a number of uses.

Currently used as a garage and workshop, the building is in excellent condition with a concrete floor and an electrical and water supply.

Biomass Boiler
Pencefn has strong green credentials with the entire site heated by way of a biomass boiler.

Land
The farmland at Pencefn extends in its entirety to approximately 7 acres of grazing and cropping ground. The farmland provides an attractive surrounding to the holding and offers potential future opportunities to grow the diversified income.

Method of Sale
The property is offered for sale by Private Treaty.

Tenure & Possession
The freehold of the property is offered for sale with vacant possession.

Services
We understand Pencefn benefits from two mains electrical supplies, a mains water supply and a natural spring and private drainage by way of a septic tank of which there are three to service the properties on the holding.

The properties also benefit from full fibre optic broadband.

The property has the benefit of an Evoworld P100 biomass boiler of 105kw.
Further details on the Renewable Heat Incentive are available from the selling agent.

EPC Ratings
Pencefn Farmhouse – D (63)
Ty Hen – D (59)
Ty Gwennol – D (57)
Y Llaethdy – D (64)

Local Authority
Cyngor Gwynedd
www.gwynedd.llyw.cymru

Viewings
Viewings strictly by confirmed appointment with the Vendor’s Agent Carter Jonas

Directions
Turn from the A494 into the village of Sarnau and follow the road bearing rightwards and up for approximately 0.50 miles and then take a left tun into the Pencefn drive.

What3words
/// index.reflect.taste

The next steps...

Before making an offer on a property you will want to consider your financial situation, your income and outgoings.

Will you finance the purchase of your next property from the sale of an existing property which can put you in a chain, arrange a mortgage through your bank or buy the property outright.

To help you finance your next property purchase, we have a long established relationship with an independent mortgage broker who can discuss your situation with you.

Remember that having a 'mortgage decision in principle' can make you a more attractive buyer when you make an offer on a property. Contact our mortgage advisers for free, no obligation and impartial advice.

Some advantages of a broker are:

  • They do all the legwork for you, working on your behalf with the lender
  • They compare wholesale mortgage rates from a large number of banks and lenders all at once
  • Their wholesale interest rates can be lower than retail (bank branch) interest rates
  • They offer more loan options because they work with numerous banks and lenders
  • They can finance tricky deals because of their knowledge and various lending partners
  • They are typically easier to get in contact with, and are less bureaucratic.

However advantages of working with your bank are:

  • You may be able to build off an existing relationship (and gain discounts if you have a checking or savings account)
  • You may already know the banker who will handle your mortgage
  • Banks may be more accountable than a smaller shop
  • They may offer lower interest rates in some cases
  • Their ability to add mortgage to existing banking profile and make automatic payments from linked account.

When you see a property you are interested in on our website, call us 24/7 to arrange a viewing. Or if you prefer, get in touch via our website and we will call you back to find a time to view the property that suits you.

Once you’ve found a property you want to buy, it’s time to make an offer. A bit of negotiation is to be expected, however don't offer so little that you end up in a lengthy negotiation process, as you might lose the property altogether if someone else makes a higher bid.

If other offers have been made on a property we aren't legally able to tell you what they are, but we may indicate if they were close to the asking price.

If you have a property to sell, why not see how we can help you.

Or if you’re considering letting your property, we can take the stress out of managing your rental, and our award winning lettings team offer a service that can be tailored to your needs.

Combined with nearly 170 years of experience and one of the highest customer satisfaction scores in the industry, Carter Jonas is the perfect property partner.

Why not book a free, no obligation valuation of your property and find out how Carter Jonas can help you make your next move.

Key property details
Property attributes
Detached
Additional attributes
Outbuildings Secondary Accomodation Character Property Holiday Complex Garden Land/Paddock
Locality
Rural
Total sq ft
304,920 (28,328 Sq M) approx.
Carter Jonas reference
BAN250003
Thinking of selling?

Find out what your property is worth