Northfield Lane, Nassington PE8

Northfield Lane, Nassington PE8

5 Bedroom | Holiday Complex

Asking price £2,950,000
Middle Street 2.5 miles
Parker Road 3.4 miles
Big Green 3.6 miles

Holiday accommodation is provided via nine cottages as well as an Eco Lodge, also with a pool house. Residential accommodation includes Frog Hall and annexe. There is an agricultural barn, stabling and builder’s yard, all of which offer development potential (STPP).

An opportunity to purchase a holiday let business with scope for expansion.

Holiday accommodation is provided via nine cottages as well as an Eco Lodge, also with a pool house. Residential accommodation includes Frog Hall and annexe. There is an agricultural barn, stabling and builder’s yard, all of which offer development potential (subject to planning permission (STPP)).

In all extending to approximately 4.37 acres.

For sale by private treaty as a whole.


Property

Frog Hall totals an area of 4.37 acres and comprises the following elements:


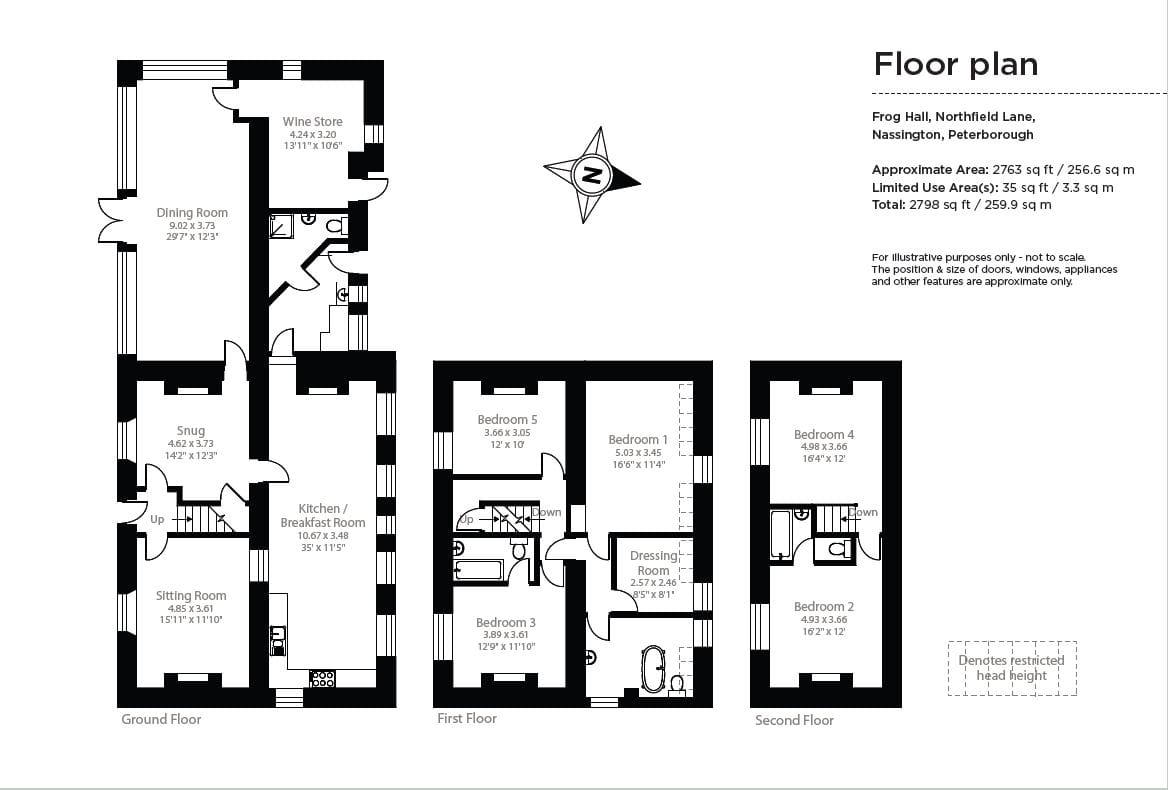
Frog Hall

A substantial Grade II Listed three-storey house extending to 2,798 sq ft. The Property offers spacious living accommodation with five double bedrooms and is finished to a high specification. The ground floor of Frog Hall comprises an entrance hall with two living rooms accessed off this entrance, both with inglenook fireplaces. Large kitchen with downstairs utility room and downstairs water closet adjoining. Substantial dining room with log burner and double doors leading to the garden. Adjacent to the dining room is a large wine storage room. On the first-floor, the Property benefits from three large bedrooms. The principal bedroom presently benefits from a dressing room which could be utilised as a further bedroom alternatively. There is a large family bathroom on the first-floor, and one of the bedrooms benefits from an en-suite bathroom. On the second floor are a further two bedrooms, one of which benefits from an en-suite bathroom.


Annexe

Detached open-plan annexe comprising one large bedroom with en-suite bathroom and a walk-in wardrobe, extending to approximately 452 sq ft.


The Business

The Lily Pad holiday cottages are open to guests 12 months a year. Company accounts and booking records can be provided to bona fide purchasers upon request.


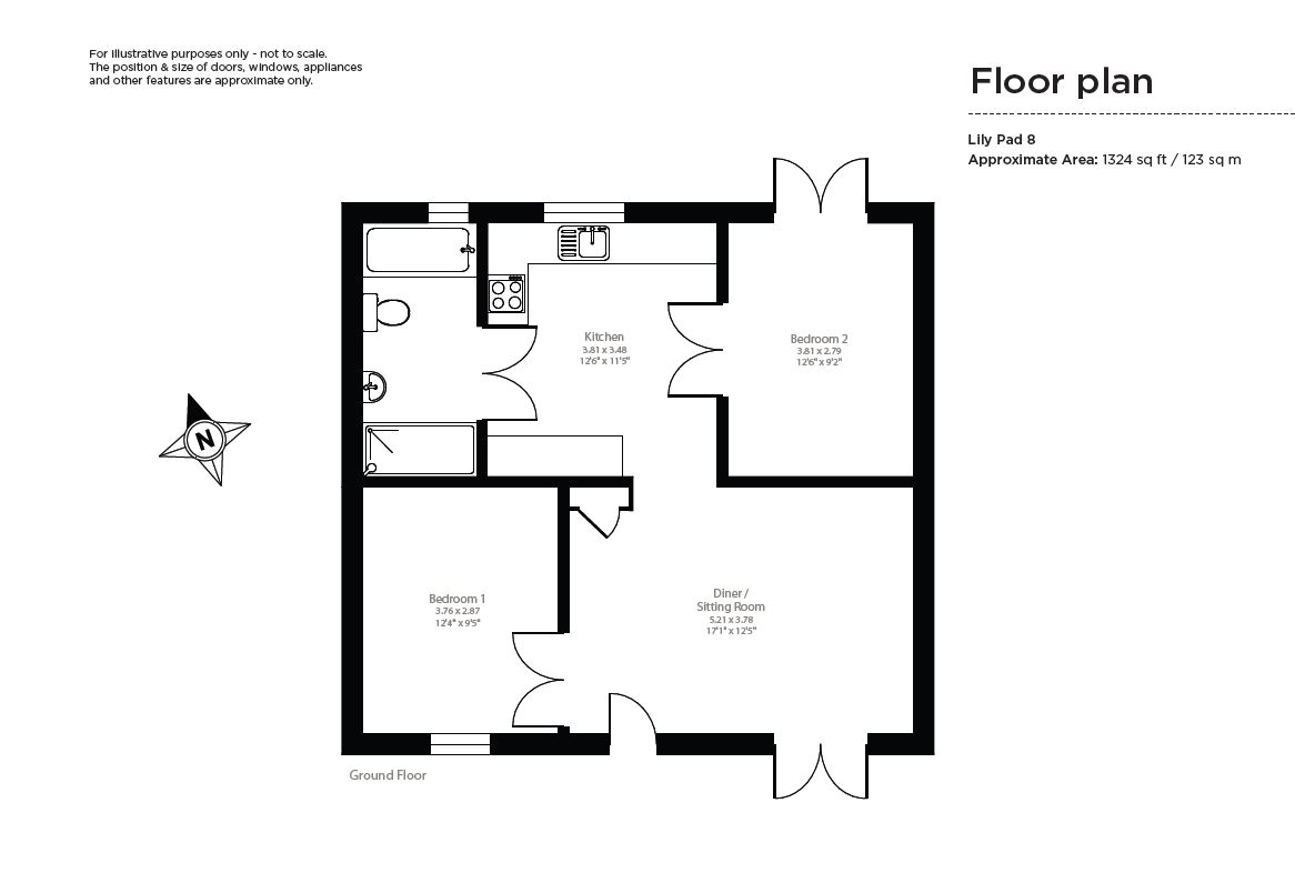
Lily Pad Holiday Cottages

Modern ski chalet-style holiday lets each equipped with a bathroom, kitchen and dining area:
• Lily Pads 6 & 7: five-bedroom cottages, sleeping up to 10 people.
• Lily Pads 1, 2 & 3: three-bedroom cottages, sleeping up to six people.
• Lily Pad 4, 8 & 9: two-bedroom cottages, sleeping up to four people.
• Lily Pad 5: one-bedroom cottage, sleeping up to two people.

Each cottage benefits from either a balcony or garden/terrace area.


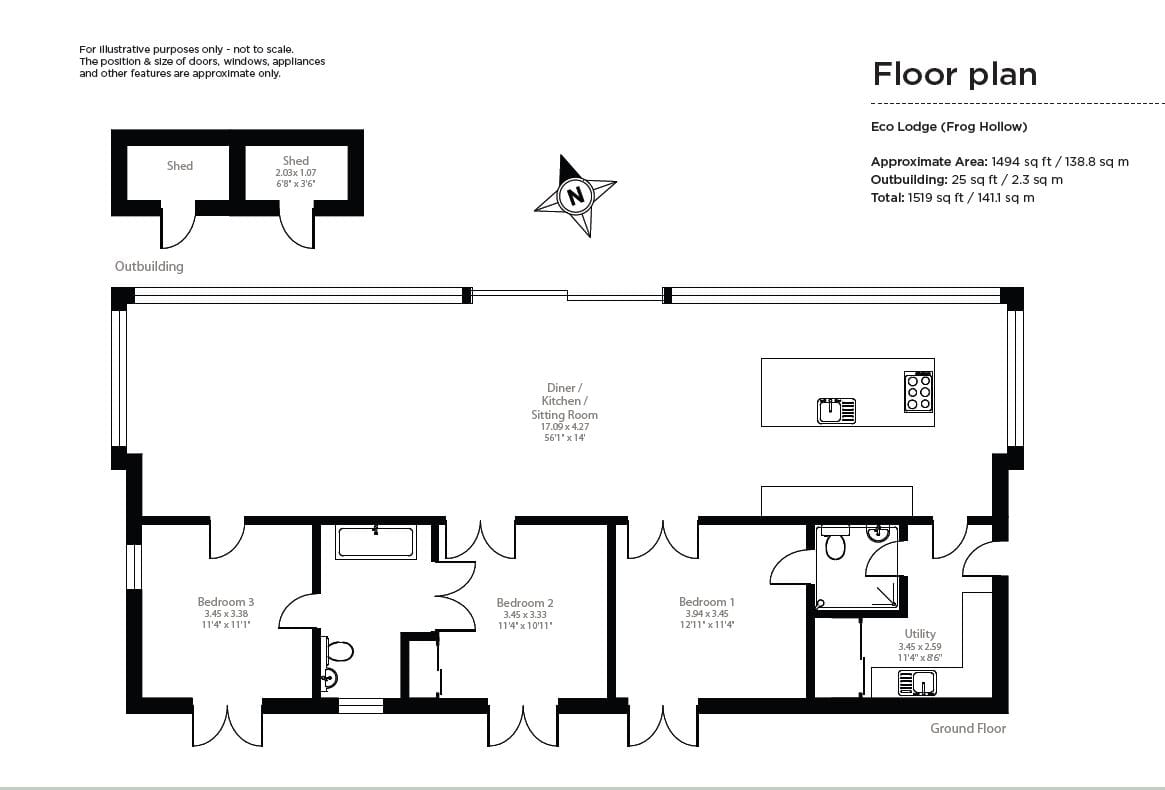
Eco Lodge

The Eco Lodge, otherwise named Frog Hollow, comprises three double bedrooms, one bathroom, open-plan living room/ kitchen and a utility room. Frog Hollow benefits from the installation of 11kW solar panels on the roofing and associated battery storage. It is also equipped with underfloor heating and an air-source heat pump providing central heating.


Pool House

The pool house features an indoor swimming pool, with sauna, w/c, shower, utility room and large terrace.


Agricultural Barn

Steel portal frame barn, with potential for development (STPP). Extending to approximately 1,390 sq ft.


Stable Block

A stable block comprising four stables, with potential for development (STPP). Extending to approximately 910 sq ft.


Builder’s Yard

A former builder’s yard situated in the north-eastern corner of the Property, set away from the guest accommodation. The builder’s yard is approximately 0.54 acres and comprises a biomass boiler shed extending to approximately 1,390 sq ft. This element of the Property offers potential for development (STPP) and is being sold subject to a development overage (detailed further in these marketing particulars).


Land

The grass paddocks extend to approximately 1.92 acres, and are separated by post-and-rail fencing, making this area well-suited to equestrian grazing.


Location

Nassington is located six miles north-east of the market town of Oundle, eight miles south of Stamford and 10 miles west of Peterborough. The rural surroundings offer ample walking trails around the area, particularly along the Nene Valley Railway. Referred to as the “Notswolds”, the attractive limestone buildings and undulating countryside in this eastern part of Northamptonshire bears striking resemblance to the Cotswolds, proving popular with both local residents and tourists alike. Local public schooling options are outstanding, including Oundle, Stamford, Uppingham and Oakham Schools. The Property benefits from good transport links, with the A1 and A14 roads situated in close proximity, providing access to London and the wider road network. Peterborough railway station provides direct rail services to London Kings Cross in under 1 hour. Nassington village benefits from a range of amenities, including a tearoom, pub, cricket club and butcher shop.


Method of Sale

For sale by private treaty as a whole.


Tenure & Possession

The freehold of the site is being sold with vacant possession. The Property and trading business is to be sold as a going concern, inclusive of the company’s trading website and furnishings of the business accommodation. A detailed schedule of contents with which the Property is to be sold will be provided by the Vendor upon agreement of Heads of Terms.


Access

The Property benefits from three access points off Northfield Lane: Frog Hall driveway, Lily Pad cottages driveway and the builder’s yard. The Eco Lodge is currently accessed via the builder’s yard.


Planning

Planning consent restricts the use of Lily Pad cottages and the Eco Lodge to tourist accommodation. Alternative uses and development of the Property will be subject to achieving the necessary planning consents. Previous planning application reference numbers include:

• 20/00490/VAR
• 14/01971/FUL
• 13/01015/FUL
• 13/00523/LBC
• 13/00522/FUL
• 13/00517/FUL
• 12/01303/FUL
• 11/00146/FUL
• 10/00288/FUL
• 09/01452/VAR
• 09/00663/FUL


Listing Status

Frog Hall is a Grade II listed Property, first listed on 12 October 1988.


Overage

The builder’s yard is being sold subject to a development overage of 30% for a term of 30 years, to be triggered by the implementation of planning permission (or deemed planning permission) or permitted development rights for any development other than agricultural use, payable within 1 month of the implementation of such relevant permission.


Services

The Property benefits from 2 mains water supplies. This is unmetered to Frog Hall, and metered to Lily Pad cottages and the Eco Lodge.

Mains electricity is supplied via a 100-amp single-phase supply to Frog Hall. The annexe and stables are on separate meters.

The electric car charging point is powered by a 100-amp three-phase power supply. This electricity is then distributed to all other units, including the Eco Lodge and biomass boiler.

The 200kW biomass boiler generates an income of approximately £17,000 per annum from government subsidies. Central heating is provided to Frog Hall via the biomass boiler, however there is the option for this to also be provided by the oil-fired boiler which is connected.

Both the Eco Lodge and holiday cottages benefit from air-source heat pumps, providing central and underfloor heating.

Frog Hall and the annexe are connected to mains drainage. The remainder of the Property benefits from a 65-person Klargester septic tank with a pump (installed in 2011) located in the builder’s yard.

The Eco Lodge benefits from 11kW of solar panels on the roof.

Wi-Fi is provided to the Property via Gigaclear, a 500mb fibreoptic connection with firewall protection.


Wayleaves, Easements & Rights of Way

The Property is to be sold subject to, and with the benefit of, all existing wayleaves, easements, covenants and rights of way, whether or not disclosed. A public footpath crosses part of the driveway between Frog Hall and Lily Pad cottages.


Health & Safety

All viewings are carried out at the sole risk of the viewer and neither the selling Agent nor the Vendor takes responsibility.


VAT

Any guide prices quoted or discussed are exclusive of VAT. In the event that the sale of the Property becomes a chargeable supply for the purposes of VAT, such tax will be payable (or become payable by the purchaser) in addition to the purchase price.


Sporting, Timber & Mineral Rights

To be included in the sale.


EPC Ratings

• Frog Hall: E (40)
• Annexe at Frog Hall: C (72)
• Eco Lodge (Frog Hollow): C (74)
• Lily Pad 1: A
• Lily Pad 2: A
• Lily Pad 3: A
• Lily Pad 4: A
• Lily Pad 5: A
• Lily Pad 6: A
• Lily Pad 7: A
• Lily Pad 8: A
• Lily Pad 9: A


Local Authority

North Northamptonshire Council
Cedar Drive
Thrapston
NN14 4LZ
03001 263000


Viewings

Viewings of the Property are strictly by appointment only, and to be accompanied by either the selling Agent or the Vendor.


Directions

From Peterborough: Continue along the A47, taking the A1/A47 exit towards Wansford. Continue through Wansford following the Yarwell Road to Nassington village. On entering the village, turn right onto Church Street, leading to Northfield Lane, where you will arrive at the Property on your left-hand side.


What3Words

/// fines.heavy.nuzzling

The next steps...

Before making an offer on a property you will want to consider your financial situation, your income and outgoings.

Will you finance the purchase of your next property from the sale of an existing property which can put you in a chain, arrange a mortgage through your bank or buy the property outright.

To help you finance your next property purchase, we have a long established relationship with an independent mortgage broker who can discuss your situation with you.

Remember that having a 'mortgage decision in principle' can make you a more attractive buyer when you make an offer on a property. Contact our mortgage advisers for free, no obligation and impartial advice.

Some advantages of a broker are:

  • They do all the legwork for you, working on your behalf with the lender
  • They compare wholesale mortgage rates from a large number of banks and lenders all at once
  • Their wholesale interest rates can be lower than retail (bank branch) interest rates
  • They offer more loan options because they work with numerous banks and lenders
  • They can finance tricky deals because of their knowledge and various lending partners
  • They are typically easier to get in contact with, and are less bureaucratic.

However advantages of working with your bank are:

  • You may be able to build off an existing relationship (and gain discounts if you have a checking or savings account)
  • You may already know the banker who will handle your mortgage
  • Banks may be more accountable than a smaller shop
  • They may offer lower interest rates in some cases
  • Their ability to add mortgage to existing banking profile and make automatic payments from linked account.

When you see a property you are interested in on our website, call us 24/7 to arrange a viewing. Or if you prefer, get in touch via our website and we will call you back to find a time to view the property that suits you.

Once you’ve found a property you want to buy, it’s time to make an offer. A bit of negotiation is to be expected, however don't offer so little that you end up in a lengthy negotiation process, as you might lose the property altogether if someone else makes a higher bid.

If other offers have been made on a property we aren't legally able to tell you what they are, but we may indicate if they were close to the asking price.

If you have a property to sell, why not see how we can help you.

Or if you’re considering letting your property, we can take the stress out of managing your rental, and our award winning lettings team offer a service that can be tailored to your needs.

Combined with nearly 170 years of experience and one of the highest customer satisfaction scores in the industry, Carter Jonas is the perfect property partner.

Why not book a free, no obligation valuation of your property and find out how Carter Jonas can help you make your next move.

Key property details
Additional attributes
Holiday Complex
Carter Jonas reference
CBR240039
Thinking of selling?

Find out what your property is worth