Wilton Mill Farm & Cottages, Pelynt PL13

Wilton Mill Farm & Cottages, Pelynt PL13

7 Bedroom | Freehold | 5 Baths | Secondary Accomodation | Holiday Complex

Guide price £1,150,000
Sandplace 3.1 miles
Looe 3.1 miles
Causeland 3.8 miles

Established holiday cottage complex within walking distance of the village and only 3.5 miles from the South Cornwall coastline. Comprising of a three storey, 3-bedroom farmhouse and 3 holiday letting cottages, all overlooking the mill pond. Set in 5.14 acres.

Established holiday cottage complex within walking distance of the village and only 3.5 miles from the South Cornwall coastline including the fishing villages of Looe, Polperro and Fowey, along with the sandy beaches of Talland and Lantivet.

The holiday cottage complex comprises of a three storey, 3-bedroom farmhouse and 3 holiday letting cottages, all overlooking the mill pond.

There is potential to develop a glamping business from the land, subject to gaining the necessary consents.

Set in 5.14 acres in a valley setting with stream.

For sale by private treaty as a whole.


Location
Wilton Mill Farm Holiday Cottages is located in a rural setting in its own valley, only 0.5 miles from the village of Pelynt, which is within walking distance, down the country lane. The village provides a primary school, church, butchers, village shop/post office and the Jubilee Inn public house, which is known for good food in the area.

The harbour town of Looe is 4.5 miles away, with a secondary school, supermarkets, dentist, shops, a fish market, moorings and a slipway for boating/sailing, which is very popular with tourists due to its picturesque nature and recent use in the filming of the BBC series Beyond Paradise. Further amenities can be found in Liskeard, 12 miles. Plymouth is the commercial centre of the area, 25 miles away, and is accessed from the A38 via the Tamar Bridge or the Tor Point Ferry. Plymouth City has a theatre, shopping centre, cinema, and national aquarium.

Popular tourist attractions in the area include the fishing villages of Polperro, 4 miles, and Fowey, 8.5 miles via the Bodinnick Ferry, plus the sandy beaches of Talland and East Looe. The nearest beaches are Lantivet, Lansallos and Lantic Bay, a long stretch of unspoilt coastline owned by the National Trust and known locally as the Smugglers Coast.

Attractions in the area include the Eden Project at St Austell, the Lost Gardens of Heligan, near Mevagissey, Lanhydrock House (National Trust) at Bodmin, Antony’s House (National Trust) at Tor Point, and the Adrenalin Quarry near Liskeard. Mounting biking is available at Cardinham Woods near Bodmin.

The North Cornwall coastline is accessible at the popular harbour town of Padstow and at the surfing beaches of Polzeath and Watergate Bay, plus the fishing village of Port Issac, made famous by the Doc Martin TV series.


The Business
Wilton Mill Farm Holiday Cottages has been in the same ownership since 2019. The current owners have built up an established and profitable business, providing high quality self-catering accommodation.

The property is located near the coastline and the popular tourist destinations of Polperro, Fowey and Looe, which makes it the ideal location to explore the area. The road communications to the property are good from the M5 motorway, with the A38 dual carriageway giving access to Plymouth.

The business had a gross turnover of £53,000 in the 2023/24 season and has repeat business of approximately 25%. The cottages are open all year round.

There is potential to convert the traditional stone barn onsite known as The Piggery into an additional holiday letting cottage or a guest accommodation, subject to gaining the relevant planning consents.

The setting of the property with the mill pond and stream in its own valley setting lends itself for the development of a glamping business, subject to gaining the relevant planning consents.

The business is advertised via their website: www.wiltonmill.com along with Facebook, Airbnb and Instagram. In addition, they use Sykes, a letting agent, who also take bookings for the business. Trading information can be provided to bona fide purchasers.


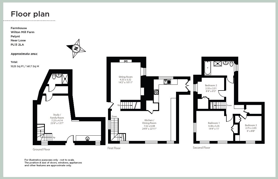
Wilton Mill Farmhouse
Three storey farmhouse, believed to be 18th Century that has been refurbished to a high standard with a range of features including open fireplaces, beamed ceilings and exposed stone walls.

The accommodation on the ground floor comprises a study/family room used by the business with a shower room to the rear. Stairs lead up to the open plan sitting room with wood burner and kitchen/dining room which overlooks the mill pond and has a rear door leading out on to a patio. Stairs from the sitting room lead up to the second floor accommodation which comprises three bedrooms and a family bathroom.


The Cottages
All of the cottages have been refurbished in a contemporary style yet retain some character features and have smart TVs, wood burning stoves, white bathroom suites and shaker style kitchens. All are serviced by oil-fired central heating.

Wheel Cottage
A detached, two-storey cottage converted from the former mill building, providing accommodation on the ground floor of hall with steps leading down to a bedroom and steps leading up to the bathroom. A further staircase leads up to an open plan sitting/dining room and kitchen area which has a vaulted ceiling and woodburning stove. Outside is a private patio area overlooking the valley. (Sleeps 2).

Mill Cottage
Two-storey, character, Cornish cottage providing accommodation on the ground floor of an open plan sitting/dining room and kitchen plus a ground floor bathroom. At first floor, a landing and two bedrooms. Outside to front is a patio area overlooking the courtyard and valley. (Sleeps 4).

Barn Cottage
A stone built, two-storey, upside down character cottage providing accommodation on the ground floor of bedroom with beamed ceiling, bathroom and hallway. At first floor, an open plan sitting/dining room and kitchen area with vaulted ceiling, woodburning stove and views over the mill pond and valley. A door to rear leads outside to a patio area. (Sleeps 2).


Outside
The gardens are a major part of Wilton Mill Farm Holiday Cottages, and at the top of the site is a timber BBQ hut and area used by guests for alfresco dining, which enjoys views over the valley.

Next to Barn Cottage is a single storey barn which is used as a potting shed and small shop for the business, but could be converted into extra accommodation, subject to gaining the necessary planning consents. The barn would be ideal as guest accommodation with an en-suite bathroom and could be let in conjunction with Barn Cottage next door. Perfect for generations of family coming away together on holiday, or as extra income let as a separate B&B suite. The Piggery is a two-storey, stone-built, traditional barn with potential for conversion into an additional holiday letting cottage, subject to necessary consents.

The mill pond to the front of the site makes an attractive setting for guests to enjoy with a stream running through the land. There are additional paddocks which could be used as animal enclosures or meadows.

At the far end of the land is an additional access onto the highway, a separate country lane where an entrance could be introduced for the development of a glamping business, subject to gaining the necessary planning consents.

Next to the mill pond is a substantial sized vegetable patch with greenhouse, raised beds and a small orchard. In addition to the mill pond are two further nature ponds.


Method of Sale
The property is offered for sale as a whole by private treaty, inclusive of trade inventory to include furnishings, equipment, fixtures and fittings in relation to the business, excluding any personal items.

Tenure & Possession
The freehold interest is being offered for sale with vacant possession available on completion.

Services
The property is serviced by mains electricity, mains water and a private drainage system. The farmhouse has oil-fired central heating with the hot water being provided by the oil boiler.

EPC Rating
The farmhouse has an EPC rating of F.

Council Tax
Band C.

Rateable Value
According to the Valuation Office, the premises has a rateable value of £3,750. Interested parties are advised to make their own enquiries.

Local Authority
Cornwall Council
www.cornwall.gov.uk

Viewings
Strictly by appointment with agents Carter Jonas, Taunton office.

/// famous.thrashed.odds

The next steps...

Before making an offer on a property you will want to consider your financial situation, your income and outgoings.

Will you finance the purchase of your next property from the sale of an existing property which can put you in a chain, arrange a mortgage through your bank or buy the property outright.

To help you finance your next property purchase, we have a long established relationship with an independent mortgage broker who can discuss your situation with you.

Remember that having a 'mortgage decision in principle' can make you a more attractive buyer when you make an offer on a property. Contact our mortgage advisers for free, no obligation and impartial advice.

Some advantages of a broker are:

  • They do all the legwork for you, working on your behalf with the lender
  • They compare wholesale mortgage rates from a large number of banks and lenders all at once
  • Their wholesale interest rates can be lower than retail (bank branch) interest rates
  • They offer more loan options because they work with numerous banks and lenders
  • They can finance tricky deals because of their knowledge and various lending partners
  • They are typically easier to get in contact with, and are less bureaucratic.

However advantages of working with your bank are:

  • You may be able to build off an existing relationship (and gain discounts if you have a checking or savings account)
  • You may already know the banker who will handle your mortgage
  • Banks may be more accountable than a smaller shop
  • They may offer lower interest rates in some cases
  • Their ability to add mortgage to existing banking profile and make automatic payments from linked account.

When you see a property you are interested in on our website, call us 24/7 to arrange a viewing. Or if you prefer, get in touch via our website and we will call you back to find a time to view the property that suits you.

Once you’ve found a property you want to buy, it’s time to make an offer. A bit of negotiation is to be expected, however don't offer so little that you end up in a lengthy negotiation process, as you might lose the property altogether if someone else makes a higher bid.

If other offers have been made on a property we aren't legally able to tell you what they are, but we may indicate if they were close to the asking price.

If you have a property to sell, why not see how we can help you.

Or if you’re considering letting your property, we can take the stress out of managing your rental, and our award winning lettings team offer a service that can be tailored to your needs.

Combined with nearly 170 years of experience and one of the highest customer satisfaction scores in the industry, Carter Jonas is the perfect property partner.

Why not book a free, no obligation valuation of your property and find out how Carter Jonas can help you make your next move.

Key property details
Property attributes
Detached
Additional attributes
Secondary Accomodation Holiday Complex
Tenure
Freehold
Total sq ft
223,898.4 (20,800.9 Sq M) approx.
Carter Jonas reference
TAU240102
Thinking of selling?

Find out what your property is worth