Development Site At Foldhill Lane, Martock TA12

Development Site At Foldhill Lane, Martock TA12

Freehold | 0.86 acres (0.348 hectares)

Guide price £575,000
Marwin Close 1.1 miles
Main Street Post Office 1.4 miles
Coat Farm 1.7 miles

A well-located residential development site for five dwellings.

The Residential Development Site at Foldhill Lane comprises a range of farm buildings with planning permission for replacement with five no. dwellings. The site is situated in an accessible rural location with adjoining farmland but with easy access to the nearby village of Martock and the A303.

In all extending to 0.86 of an acre.

Location
The site is located along Foldhill Lane, in a rural yet accessible location between the villages of Ash, and Martock.

The large village of Martock, which is about one mile from the site offers a good range of day-to-day facilities including a selection of public houses, a hotel, post office, small supermarket, bakery, and butchers. In addition, there is a doctor’s surgery, a dentist, and pharmacy, together with a veterinary surgery.

There are primary schools in Martock and Ash, and secondary schools in Stoke-sub-Hamdon (Stanchester Academy) and Huish Episcopi, Langport (Huish Episcopi Academy), and further education available at Yeovil College.

The site is also within easy reach of several local landmarks including Ham Hill Country Park, a wildlife haven centred around an Iron Age hillfort, offering fantastic opportunities for scenic dog walks, walking, running, and wildlife watching with far reaching views across Somerset.

The A303 is within easy reach of the site and provides access to the nearby town of Yeovil which offers a wider range of shopping, recreational and scholastic facilities, together with a mainline rail link to London Waterloo.

The Property
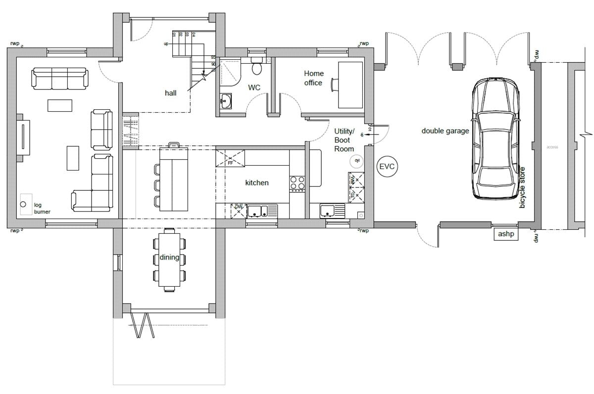
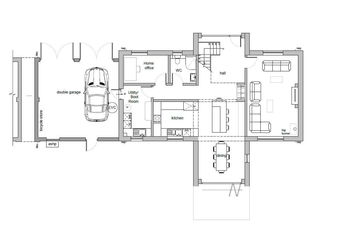
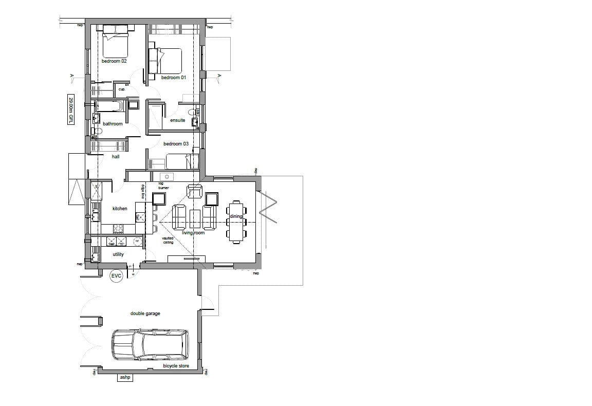
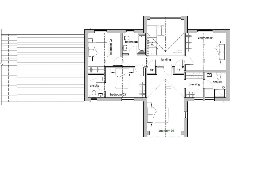
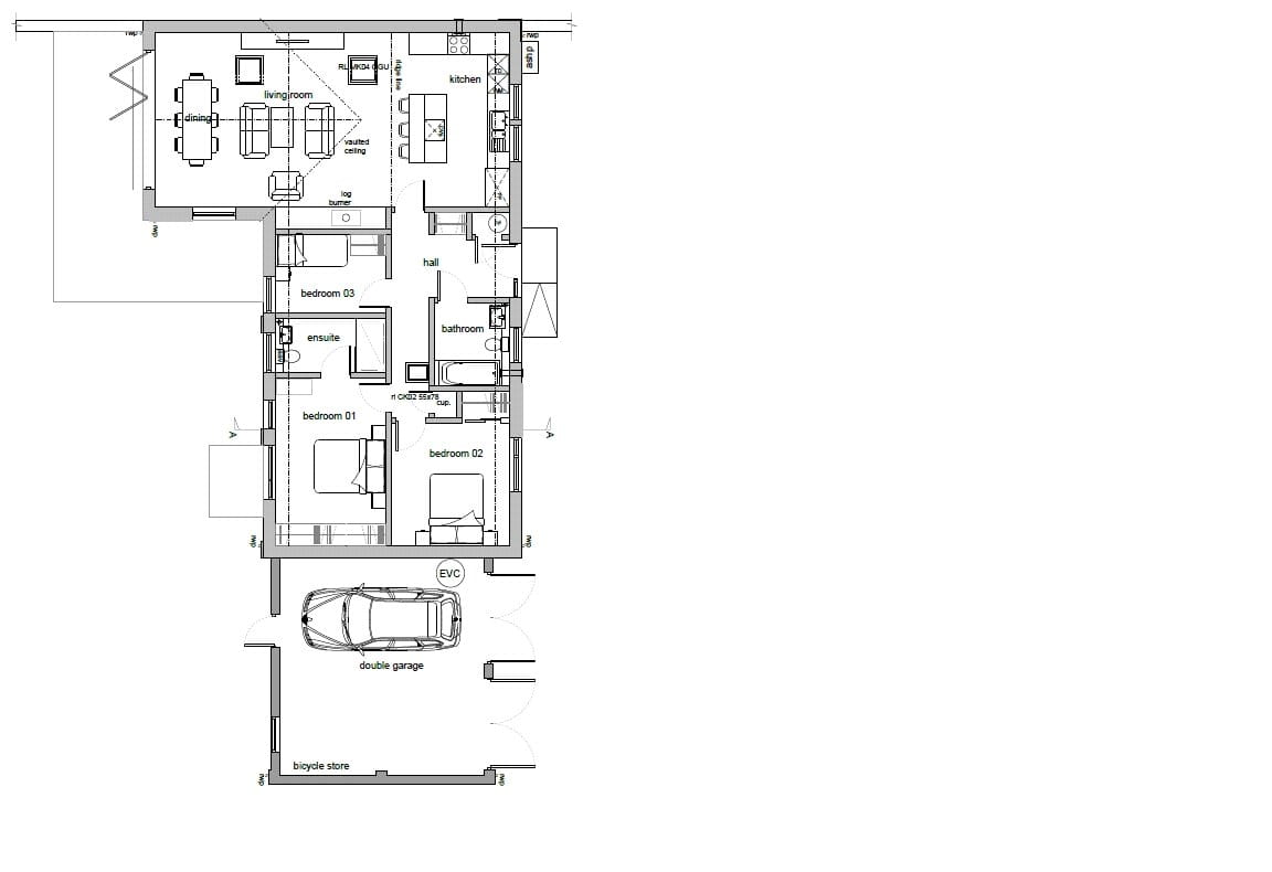
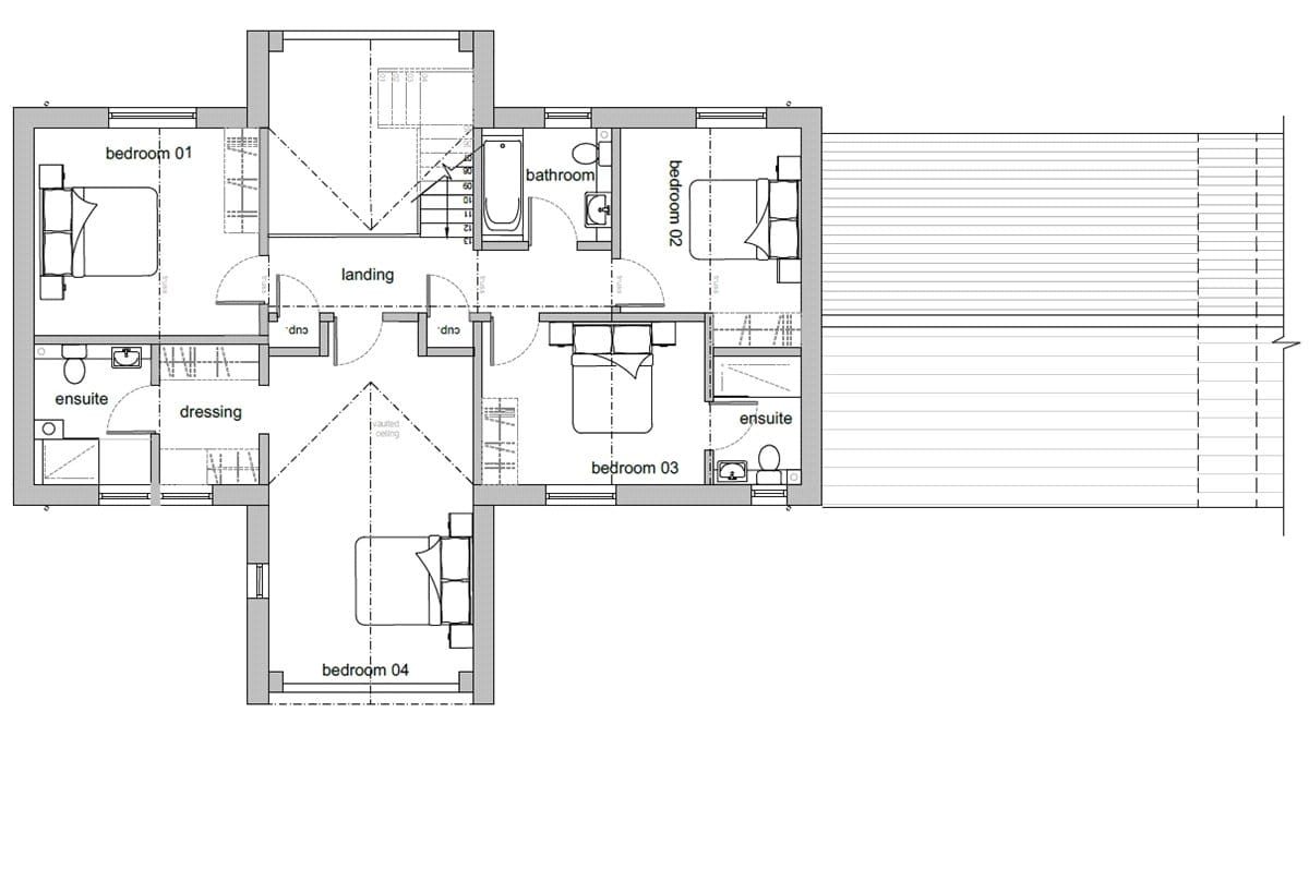
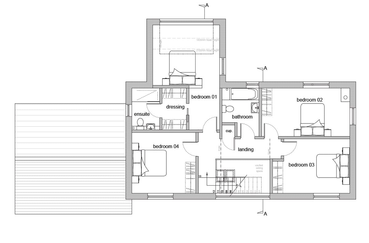
Permission has been granted for the demolition and replacement of the farm buildings with five no. dwellings comprising the following:

Unit 1 – a detached three-bedroom bungalow with adjoining double garage with a GIA of 124sqm.

Unit 2 – a detached four-bedroom two-storey dwelling with adjoining double garage with a GIA of 181sqm.

Unit 3 – a link-detached four-bedroom two-storey dwelling with adjoining double garage with a GIA of 193sqm.

Unit 4 – a link-detached four-bedroom two-storey dwelling with adjoining double garage with a GIA of 193sqm.

Unit 5 – a detached three-bedroom bungalow with adjoining double garage with a GIA of 124sqm.

The Community Infrastructure Levy (CIL) has been calculated as zero, and there is no phosphate mitigation requirement. The Vendors have already completed the Biodiversity Net Gain (BNG) requirements in respect of the proposed development off-site.

The vendors will retain ownership of the access and the areas required for the agricultural access tracks. The required access rights will be granted, including over the track to the west of the site to maintain the proposed package treatment plant. The site area offered for sale totals 0.86 of an acre.

Method of Sale
The property is offered for sale by private treaty with a guide price of £575,000.

Tenure & Possession
The freehold of the site is offered for sale with vacant possession available upon completion. The site will be sold with full access rights over the road access from Foldhill Lane.

Planning
Planning permission was granted in February 2026 under application reference 24/02222/FUL by Somerset Council (South Somerset District Council) for the demolition of farm buildings, erection of five dwellings and construction of farm tracks.

Services
Mains water is available in Foldhill Lane. Mains electricity is available nearby. A package treatment plant will need to be installed to service the site. The purchaser will be granted the relevant rights as may be required for service connections to the site.

Health & Safety
Potential purchasers are required to take particular care when inspecting the property, recommended to wear supportive footwear for viewings and are advised to be conscious of potentially uneven and slippery ground surfaces in and around the farm buildings, as well as farm machinery which may be operating at the time of inspection.

Local Authority
Somerset Council (formerly South Somerset District Council)
www.somerset.gov.uk

Viewings
Viewings are by appointment with Carter Jonas on 01823 428590.

Directions
Following the A303 heading east, shortly after Cartgate Roundabout, take the next turning on the left, signed to Tintinhull, Ash, and Episcopi. Then take the first left signed to Martock. After about a mile, the site will be found on the left-hand side adjoining Foldhill Lane.

What Three Words
/// reputable.sped.sparrows

The next steps...

Before making an offer on a property you will want to consider your financial situation, your income and outgoings.

Will you finance the purchase of your next property from the sale of an existing property which can put you in a chain, arrange a mortgage through your bank or buy the property outright.

To help you finance your next property purchase, we have a long established relationship with an independent mortgage broker who can discuss your situation with you.

Remember that having a 'mortgage decision in principle' can make you a more attractive buyer when you make an offer on a property. Contact our mortgage advisers for free, no obligation and impartial advice.

Some advantages of a broker are:

  • They do all the legwork for you, working on your behalf with the lender
  • They compare wholesale mortgage rates from a large number of banks and lenders all at once
  • Their wholesale interest rates can be lower than retail (bank branch) interest rates
  • They offer more loan options because they work with numerous banks and lenders
  • They can finance tricky deals because of their knowledge and various lending partners
  • They are typically easier to get in contact with, and are less bureaucratic.

However advantages of working with your bank are:

  • You may be able to build off an existing relationship (and gain discounts if you have a checking or savings account)
  • You may already know the banker who will handle your mortgage
  • Banks may be more accountable than a smaller shop
  • They may offer lower interest rates in some cases
  • Their ability to add mortgage to existing banking profile and make automatic payments from linked account.

When you see a property you are interested in on our website, call us 24/7 to arrange a viewing. Or if you prefer, get in touch via our website and we will call you back to find a time to view the property that suits you.

Once you’ve found a property you want to buy, it’s time to make an offer. A bit of negotiation is to be expected, however don't offer so little that you end up in a lengthy negotiation process, as you might lose the property altogether if someone else makes a higher bid.

If other offers have been made on a property we aren't legally able to tell you what they are, but we may indicate if they were close to the asking price.

If you have a property to sell, why not see how we can help you.

Or if you’re considering letting your property, we can take the stress out of managing your rental, and our award winning lettings team offer a service that can be tailored to your needs.

Combined with nearly 170 years of experience and one of the highest customer satisfaction scores in the industry, Carter Jonas is the perfect property partner.

Why not book a free, no obligation valuation of your property and find out how Carter Jonas can help you make your next move.

Key property details
Property type
Land Development Plot
Tenure
Freehold
Total land
0.86 acres (0.348 hectares)
Carter Jonas reference
TAU260028

Suggested properties

Here are a few properties you might like, but within 2 extra miles of your current search

Guide price £125,000 11.2 acres (4.5 hectares)
Agricultural
Guide price £850,000 86.1 acres (34.8 hectares)
Agricultural
Guide price £225,000 13 acres (5.3 hectares)
Agricultural
Guide price £3,900,000 276.9 acres (112.1 hectares)
Agricultural
Guide price £1,325,000 43.4 acres (17.6 hectares)
Agricultural
Guide price £625,000 74.3 acres (30.1 hectares)
Agricultural
Guide price £425,000 46.4 acres (18.8 hectares)
Agricultural
Guide price £385,000 0.96 acres (0.388 hectares)
Agricultural
Guide price £250,000 8.1 acres (3.3 hectares)
Agricultural
Guide price £3,000,000 227 acres (91.9 hectares)
Agricultural
Guide price £450,000 0.96 acres (0.388 hectares)
Agricultural
Thinking of selling?

Find out what your property is worth