Thornfalcon, Taunton TA3

Thornfalcon, Taunton TA3

Freehold

Guide price £250,000
Taunton 3.4 miles
Corner Cottage 1.4 miles
Ilminster Road Busway 1.9 miles

A detached former groom's cottage for renovation/rebuild together with a range of stables, outbuildings and adjoining land. In all extending to 0.83 acre. For sale by private treaty as a whole.

Stable Cottage, Thornfalcon, Taunton, Somerset, TA3 5NF

A detached cottage for renovation/rebuild together with stables and adjoining land.

Stable Cottage offers potential purchasers an excellent development opportunity. The property comprises a former groom’s cottage and ancilliary accommodation of part timber and part brick elevations under a fibre cement roof offered together with a range of stables and outbuildings. The property is set within its own land but is within easy reach of Taunton, the A358, and the Blackdown Hills National Landscape.

In all extending to 0.83 acre.

For sale by private treaty as a whole.


Location
Stable Cottage is situated in the hamlet of Thornfalcon about four miles to the east of the Somerset County Town of Taunton, and within easy reach of the A358, Junction 25 of the M5, and the Blackdown Hills National Landscape.


Property
Stable Cottage is constructed of part timber and part brick elevations under a fibre cement roof. The property has in the past been occupied as two separate dwellings.

No.1 Stable Cottage offers accommodation comprising entrance hall, kitchen with adjoining sitting room with fireplace, two no. bedrooms, and a bathroom.

No. 2 Stable Cottage offers accommodation comprising kitchen/utility room with bathroom and rear hall and bedroom/sitting room on the first floor.

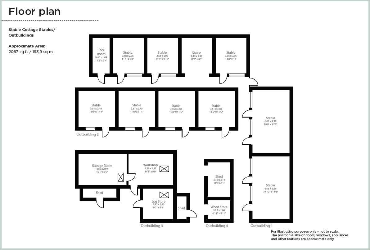
Outside, there are several timber and galvanised storage buildings/former kennels to the rear of the cottage, together with three-no. timber and fibre cement stable buildings which form a courtyard to the east of the cottage. These provide a stable block closest to the cottage with four boxes, a stable block with two no. double boxes, and a further stable block with four no. loose boxes. To the rear of the stable block is a dilapidated timber and galvanise pole barn.

The property is offered together with part of the paddock to the east and west of the property and extends in all to 0.83 of an acre.


Method of Sale
The property is offered for sale by private treaty with a guide price of £250,000.


Tenure & Possession
The freehold of the property is offered for sale with vacant possession available upon completion. The purchaser will be required to erect a new stock proof boundary fence along the southern boundary within six months of completion of the sale. The horse walker will be removed by the vendor.


Services
The property is serviced by mains electricity. Drainage is to a septic tank although potential purchasers should assume that a new treatment plant will need to be installed to service the property. Water is currently from a borehole situated within the vendor’s retained land to the south of the property. However, the property will not be sold with a right to use this supply, as there is a mains water supply in Greenway Lane close to the northern boundary of the property. The purchaser will therefore be required to establish their own water supply to service the property.


Health & Safety
Potential purchasers should take particular care when inspecting the property, being mindful of uneven and potentially slippery ground surfaces.


EPC Ratings
Stable Cottage has a current EPC rating of E.


Local Authority
Somerset Council


Viewings
Viewings are by appointment with the vendor’s selling agents, Carter Jonas, on 01823 428590.


Directions
Heading from Junction 25 of the M5 motorway, take the A358 towards Ilminster and Yeovil. As you enter Henlade on the A358, turn right onto Stoke Road. At the end of the road, turn left onto Greenway Lane. Follow this road for just over one mile and the property will be found on the right-hand side.


What 3 Words
/// insurance.shell.roving

The next steps...

Before making an offer on a property you will want to consider your financial situation, your income and outgoings.

Will you finance the purchase of your next property from the sale of an existing property which can put you in a chain, arrange a mortgage through your bank or buy the property outright.

To help you finance your next property purchase, we have a long established relationship with an independent mortgage broker who can discuss your situation with you.

Remember that having a 'mortgage decision in principle' can make you a more attractive buyer when you make an offer on a property. Contact our mortgage advisers for free, no obligation and impartial advice.

Some advantages of a broker are:

  • They do all the legwork for you, working on your behalf with the lender
  • They compare wholesale mortgage rates from a large number of banks and lenders all at once
  • Their wholesale interest rates can be lower than retail (bank branch) interest rates
  • They offer more loan options because they work with numerous banks and lenders
  • They can finance tricky deals because of their knowledge and various lending partners
  • They are typically easier to get in contact with, and are less bureaucratic.

However advantages of working with your bank are:

  • You may be able to build off an existing relationship (and gain discounts if you have a checking or savings account)
  • You may already know the banker who will handle your mortgage
  • Banks may be more accountable than a smaller shop
  • They may offer lower interest rates in some cases
  • Their ability to add mortgage to existing banking profile and make automatic payments from linked account.

When you see a property you are interested in on our website, call us 24/7 to arrange a viewing. Or if you prefer, get in touch via our website and we will call you back to find a time to view the property that suits you.

Once you’ve found a property you want to buy, it’s time to make an offer. A bit of negotiation is to be expected, however don't offer so little that you end up in a lengthy negotiation process, as you might lose the property altogether if someone else makes a higher bid.

If other offers have been made on a property we aren't legally able to tell you what they are, but we may indicate if they were close to the asking price.

If you have a property to sell, why not see how we can help you.

Or if you’re considering letting your property, we can take the stress out of managing your rental, and our award winning lettings team offer a service that can be tailored to your needs.

Combined with nearly 170 years of experience and one of the highest customer satisfaction scores in the industry, Carter Jonas is the perfect property partner.

Why not book a free, no obligation valuation of your property and find out how Carter Jonas can help you make your next move.

Key property details
Tenure
Freehold
Total sq ft
36,154.8 (3,358.9 Sq M) approx.
Carter Jonas reference
TAU250084

Suggested properties

Here are a few properties you might like, but within 2 extra miles of your current search

Offers in excess of £800,000
6 bedroom house
Guide price £795,000
7 bedroom house
Guide price £225,000
development plot
Guide price £300,000
4 bedroom house
Guide price £275,000
development plot
Guide price £175,000
cottage
Asking price £265,000
3 bedroom bungalow
Thinking of selling?

Find out what your property is worth