Greenham, Thatcham RG19

Greenham, Thatcham RG19

Freehold | 7.8 acres (3.2 hectares)

Offers in excess of £50,000
Newbury Racecourse 1.3 miles
Newbury 1.3 miles
Thatcham 3.1 miles

An attractive parcel of woodland with a lake in a semi urban location.

An attractive parcel of woodland with a lake in a semi urban location.

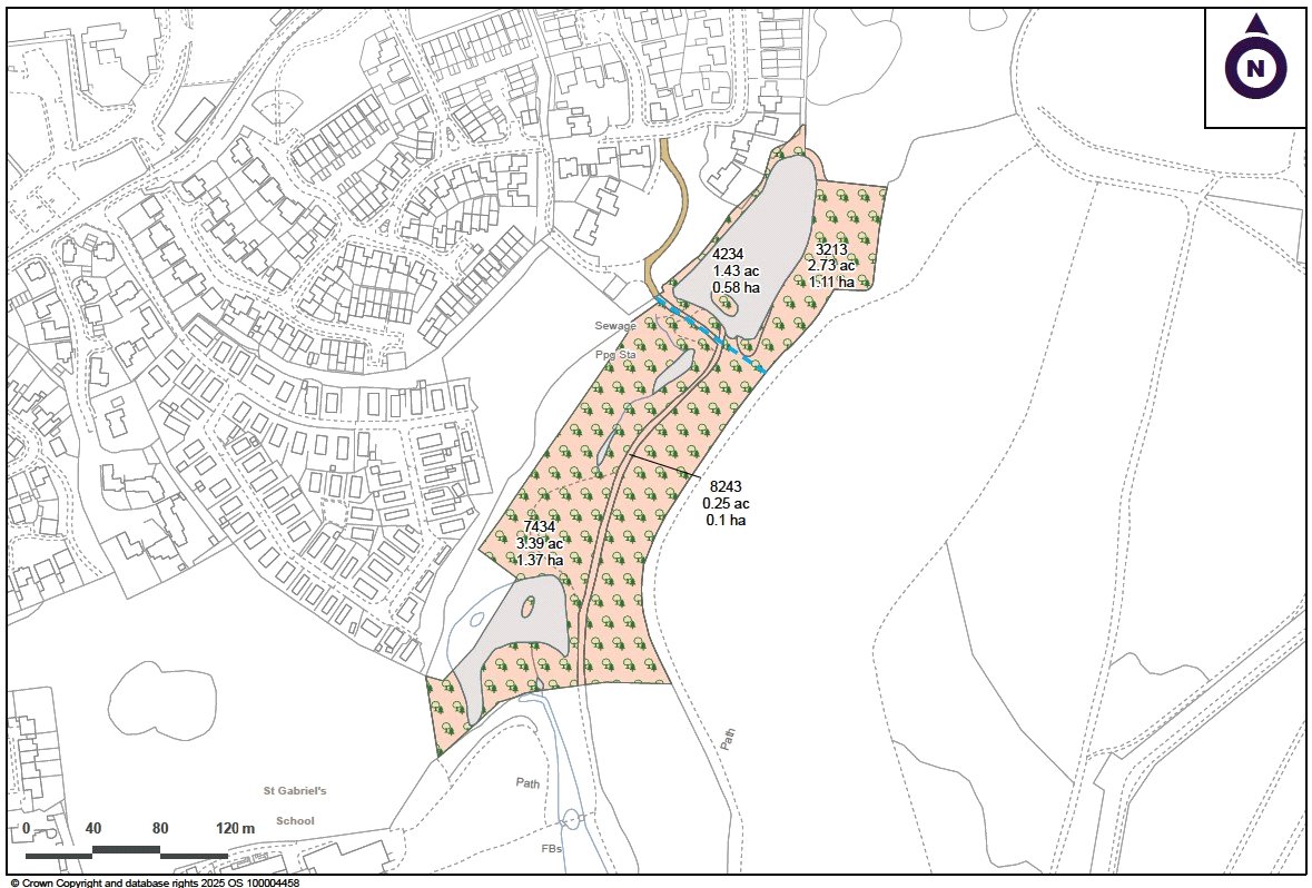
The woodland and lake at Capability Way is a parcel of woodland with a body of water to its northern boundary, all situated on the outskirts of Greenham. With access via a bollard controlled right of way from Capability Way. It is currently unmanaged but is potentially suitable for amenity or leisure uses.

In all extending to 7.80 acres (3.16 hectares).

For sale by private treaty as a whole.

Location
The Property is situated on the outskirts of Greenham to the south of the market town or Newbury which offers a full range of amenities.

Amenties
Thatcham is a small market town to the east of Newbury with a host of local amenities and good accessibility. It has a mainline train station providing access to Reading (16mins) and London Paddington (42 mins).

Land
The land is mainly woodland with a range of mature ash, beech, oak and shrub with a lake situated to the north. The eastern boundary neighbours Greenham Common and the western boundary neighbours Capability Way.

The woodland extends to about 6.37 acres (2.58 hectares) whilst the lake totals 1.43 acres (0.58 hectares).

Method of Sale
For sale by private treaty as a whole.

Tenure & Possession
Freehold with vacant possession on completion.

Designations
The property sits within the Site of Special Scientific Impact Risk Zone for Greenham and Crookham Commons.

Services
There are no services to the property that we are aware of.

Wayleaves, Easements & Rights of Way
The property is sold subject to the benefit of all rights of way, whether public or private, light, support, drainage, water and electricity supplies and other rights and obligations, easements and proposed wayleaves from masts, pylons, stays, cables, drains, water, gas and other pipes whether specifically referred to or not.

The property is afforded a right of way for all rights and purposes from Capability Way and shown brown on the plan. Foot access is available at present with access for vehicles to the property requiring fencing works.

There is a permissive path leading from Capability Way to Greenham Common which is broadly dashed blue on the plan.

Health & Safety
All viewings are carried out at the sole risk of the viewer and neither the selling agent nor the vendor takes responsibility.

Sporting Timber & Mineral Rights
Included in so far as they are owned.

Local Authority
West Berkshire Council
www.westberks.gov.uk

Viewings
Interested parties may view the property unaccompanied and with details to hand, upon prior notification to the selling agent.

Directions
From Newbury, head south on the A339 towards the Newbury Retail Park. Turn left onto Pinchington Lane and with the Newbury Retail Park on your left continue straight over the next two roundabouts. After 0.1 miles take the first right onto Capability Way. Continue following the road for 0.1 miles and you will see the path on your left. Park on the road and walk down to the Property.

What three words
/// influencing.keeps.winks

The next steps...

Before making an offer on a property you will want to consider your financial situation, your income and outgoings.

Will you finance the purchase of your next property from the sale of an existing property which can put you in a chain, arrange a mortgage through your bank or buy the property outright.

To help you finance your next property purchase, we have a long established relationship with an independent mortgage broker who can discuss your situation with you.

Remember that having a 'mortgage decision in principle' can make you a more attractive buyer when you make an offer on a property. Contact our mortgage advisers for free, no obligation and impartial advice.

Some advantages of a broker are:

  • They do all the legwork for you, working on your behalf with the lender
  • They compare wholesale mortgage rates from a large number of banks and lenders all at once
  • Their wholesale interest rates can be lower than retail (bank branch) interest rates
  • They offer more loan options because they work with numerous banks and lenders
  • They can finance tricky deals because of their knowledge and various lending partners
  • They are typically easier to get in contact with, and are less bureaucratic.

However advantages of working with your bank are:

  • You may be able to build off an existing relationship (and gain discounts if you have a checking or savings account)
  • You may already know the banker who will handle your mortgage
  • Banks may be more accountable than a smaller shop
  • They may offer lower interest rates in some cases
  • Their ability to add mortgage to existing banking profile and make automatic payments from linked account.

When you see a property you are interested in on our website, call us 24/7 to arrange a viewing. Or if you prefer, get in touch via our website and we will call you back to find a time to view the property that suits you.

Once you’ve found a property you want to buy, it’s time to make an offer. A bit of negotiation is to be expected, however don't offer so little that you end up in a lengthy negotiation process, as you might lose the property altogether if someone else makes a higher bid.

If other offers have been made on a property we aren't legally able to tell you what they are, but we may indicate if they were close to the asking price.

If you have a property to sell, why not see how we can help you.

Or if you’re considering letting your property, we can take the stress out of managing your rental, and our award winning lettings team offer a service that can be tailored to your needs.

Combined with nearly 170 years of experience and one of the highest customer satisfaction scores in the industry, Carter Jonas is the perfect property partner.

Why not book a free, no obligation valuation of your property and find out how Carter Jonas can help you make your next move.

Key property details
Property type
Land
Tenure
Freehold
Total land
7.8 acres (3.2 hectares)
Carter Jonas reference
WIR250010

Suggested properties

Here are a few properties you might like, but within 2 extra miles of your current search

Guide price £750,000 22.4 acres (9.1 hectares)
Agricultural
Guide price £450,000
Agricultural
Offers in excess of £375,000
Agricultural
Offers in excess of £500,000 77.2 acres (31.2 hectares)
Agricultural
Thinking of selling?

Find out what your property is worth