Grampound Road, Truro TR2

Grampound Road, Truro TR2

5 Bedroom | Freehold | 4 Baths | 4.4 acres (1.8 hectares)

Asking price £635,000
Post Office 0.6 miles
Post Office 1.1 miles
The Square 1.5 miles

A smallholding with an attractive farmhouse in need of refurbishment, a range of modern and traditional farm buildings, set within approximately 4.40 acres.

A smallholding with an attractive farmhouse in need of refurbishment, a range of modern and traditional farm buildings, set within approximately 4.40 acres (1.78 hectares).

Resparveth Farm comprises a five-bedroom farmhouse with views overlooking its own land, as well as a number of agricultural buildings.

The farmhouse is now in need of refurbishment and offers great scope for a purchaser to put their own stamp on the property.

The property lies in a rural location yet is within easy reach of the A390 and A30. The property is sold with the benefit of no onward chain.

For sale by private treaty.

PROPERTY
The property sits in a peaceful setting and is accessed off a minor rural road via a private (shared) concrete driveway.

The farmhouse has an attractive south elevation, overlooking the garden and land beyond. It is well-proportioned, with five bedrooms (three of which are en-suite) to the first floor, as well as a separate bathroom. The property has historically been utilised as a Bed and Breakfast.

To the ground floor the farmhouse comprises: kitchen, large utility room (with separate external door), dining room and two further reception rooms. There are a range of character features throughout, including some traditional slate flagstone flooring, a Cornish range and two fireplaces (one of which has a clome oven).

Outside, there is a south-facing garden of good size, a paddock immediately to the west and part of the field to the south. The land runs down to the railway line, which forms the southern boundary of the property.

LOCATION
The property is located next to a small working farm, in a rural yet convenient setting, just a short drive from the A390. It lies within a one-mile drive of the village of Grampound Road, or if walking on the nearby public footpath, it is less than a kilometre away. The village has a shop/post office, a cricket/social club, and a primary school.

There are several other well serviced villages in close proximity, including Probus which has numerous takeaways, a public house and a farm shop. The village of Tregony is home to the Roseland Academy, which is deemed to be the secondary school of choice for the area, given it has an ‘Outstanding’ Ofsted rating.

The town of St Austell and city of Truro are situated approximately 9 miles to the east and west respectively. They both provide a comprehensive range of leisure and shopping facilities, as well as higher education colleges. Mainline train services with direct routes to London run from both St Austell and Truro, with national and international flights operating out of Newquay Airport, which is a 13.5-mile drive to the north.

With its central location, both Cornish coasts are very accessible, with several beaches on either coast being within a 20-to-30-minute drive of Resparveth Farm. The A30 dual carriageway can be accessed at Fraddon, which is a 12-minute drive from the property and enables easy access to all parts of the county, as well as to the M5 and beyond.

BUILDINGS
To the north of the farmhouse are a range of useful outbuildings and farm buildings.

Immediately adjacent to the farmhouse is an outhouse, a former piggery and a store. There is a three-bay concrete portal frame building which could be used as a workshop or to provide storage. Additionally, there is a three-bay steel portal frame building which is in good condition.

Furthermore, also included in the sale are a range of traditional single-storey barns positioned around a central courtyard.

It is considered that the buildings included in the sale may offer potential to be developed for an alternative use (subject to gaining any necessary planning consents), if desired by the purchaser. We understand that planning consent was historically granted for the conversion of the former piggery/store into two one-bedroom accommodation units. Further information can be found on the Online Planning Register using the following planning reference number: C1/PA23/2156/02/B.

TENURE
Freehold with vacant possession upon completion.

FENCING OBLIGATIONS
The purchaser will be required to:

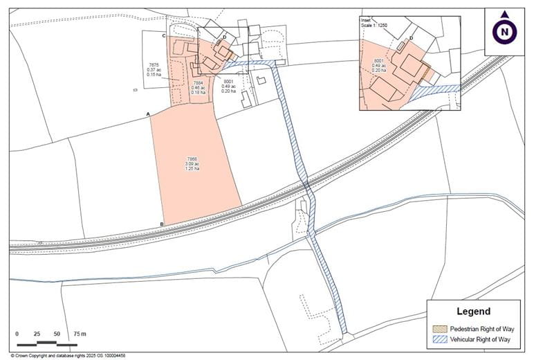
1) Within three months of completion, erect a livestock proof fence between points A and B, and C and D as shown on the land plan. The exact specification of the fence will be defined within the TP1 form which will be provided by the seller’s solicitor.

SERVICES
Water – Mains.
Electricity – Mains.
Heating – Oil-fired Rayburn, which also supplies radiators.
Drainage – Private septic tank.
Broadband – Standard or Ultrafast available (see Ofcom website for more information).
Mobile Coverage – Most networks provide largely good signal outdoors, but variable or no signal indoors.

Please note the agents have not inspected, nor tested these services.

ADDITIONAL INFORMATION
Parking – Ample off-road parking available.
Property Construction – The house is understood to be of stone construction (part being covered by a cement render), with a slate roof over.

WAYLEAVES, EASEMENTS & RIGHTS OF WAY
The property is being sold with the benefit of a vehicular right of way at all times and for all purposes, over the shared driveway used to access it, as shown hatched blue on the plan.

A pedestrian right of way will also be granted to the purchaser over part of the seller’s retained land (adjacent to the site boundary near the traditional barns), to enable access from the northeast into the central courtyard, around which the barns are situated. This right of way is shown hatched brown on the plan.

There is a public footpath over the shared driveway, but there are no public rights of way over the property being sold.

SPORTING, TIMBER AND MINERAL RIGHTS
Sporting and timber rights are included. Mineral rights are excluded.

EPC RATING
Band G.

COUNCIL TAX
Not stated.

LOCAL AUTHORITY
Cornwall Council - New County Hall, Treyew Road, Truro, Cornwall, TR1 3AY

VIEWINGS
Strictly by appointment with the agents.

DIRECTIONS
From Truro, proceed east out of the city along the A390, in the direction of St Austell. Continue for approximately 6 miles before reaching Trewithen Roundabout. At the roundabout, take the second exit and continue along the A390. After a further 0.9 miles, turn left at the Newstables junction, signposted towards Grampound Road. Continue along this road and after 0.8 miles, turn left onto a minor road (immediately after passing the 300 yard countdown marker sign for the village). Proceed for approximately half a mile before the entrance driveway will be found signposted on your right (where a for sale board has been erected). Proceed down the drive, under the viaduct and continue around to the left (passing Little Resparveth), before you will arrive at the property.

WHAT3WORDS
///iteration.door.prove

TRURO OFFICE
Contact George Olver for more information.

The next steps...

Before making an offer on a property you will want to consider your financial situation, your income and outgoings.

Will you finance the purchase of your next property from the sale of an existing property which can put you in a chain, arrange a mortgage through your bank or buy the property outright.

To help you finance your next property purchase, we have a long established relationship with an independent mortgage broker who can discuss your situation with you.

Remember that having a 'mortgage decision in principle' can make you a more attractive buyer when you make an offer on a property. Contact our mortgage advisers for free, no obligation and impartial advice.

Some advantages of a broker are:

  • They do all the legwork for you, working on your behalf with the lender
  • They compare wholesale mortgage rates from a large number of banks and lenders all at once
  • Their wholesale interest rates can be lower than retail (bank branch) interest rates
  • They offer more loan options because they work with numerous banks and lenders
  • They can finance tricky deals because of their knowledge and various lending partners
  • They are typically easier to get in contact with, and are less bureaucratic.

However advantages of working with your bank are:

  • You may be able to build off an existing relationship (and gain discounts if you have a checking or savings account)
  • You may already know the banker who will handle your mortgage
  • Banks may be more accountable than a smaller shop
  • They may offer lower interest rates in some cases
  • Their ability to add mortgage to existing banking profile and make automatic payments from linked account.

When you see a property you are interested in on our website, call us 24/7 to arrange a viewing. Or if you prefer, get in touch via our website and we will call you back to find a time to view the property that suits you.

Once you’ve found a property you want to buy, it’s time to make an offer. A bit of negotiation is to be expected, however don't offer so little that you end up in a lengthy negotiation process, as you might lose the property altogether if someone else makes a higher bid.

If other offers have been made on a property we aren't legally able to tell you what they are, but we may indicate if they were close to the asking price.

If you have a property to sell, why not see how we can help you.

Or if you’re considering letting your property, we can take the stress out of managing your rental, and our award winning lettings team offer a service that can be tailored to your needs.

Combined with nearly 170 years of experience and one of the highest customer satisfaction scores in the industry, Carter Jonas is the perfect property partner.

Why not book a free, no obligation valuation of your property and find out how Carter Jonas can help you make your next move.

Key property details
Locality
Rural
Property type
Detached House Land Gite
Additional attributes
Land/Paddock
Tenure
Freehold
Total land
4.4 acres (1.8 hectares)
Carter Jonas reference
TRU250030

Suggested properties

Here are a few properties you might like, but within 2 extra miles of your current search

Offers in the region of £850,000 3.2 acres (1.3 hectares)
Agricultural
Offers in the region of £885,000 6.8 acres (2.8 hectares)
Agricultural
Guide price £999,950 2.6 acres (1 hectares)
Agricultural
Thinking of selling?

Find out what your property is worth