Land To The North Of The B6267, Ainderby Quernhow YO7

Land To The North Of The B6267, Ainderby Quernhow YO7

Freehold

Offers over £200,000
Thirsk 3.9 miles
Sandfield Lane 0.8 miles
Grange Terrace 2.6 miles

SOLD - contracts successfully exchanged.

FOR SALE BY INFORMAL TENDER - CLOSING DATE FOR RECEIPT OF OFFERS 12 noon ON MONDAY 9 DECEMBER 2024

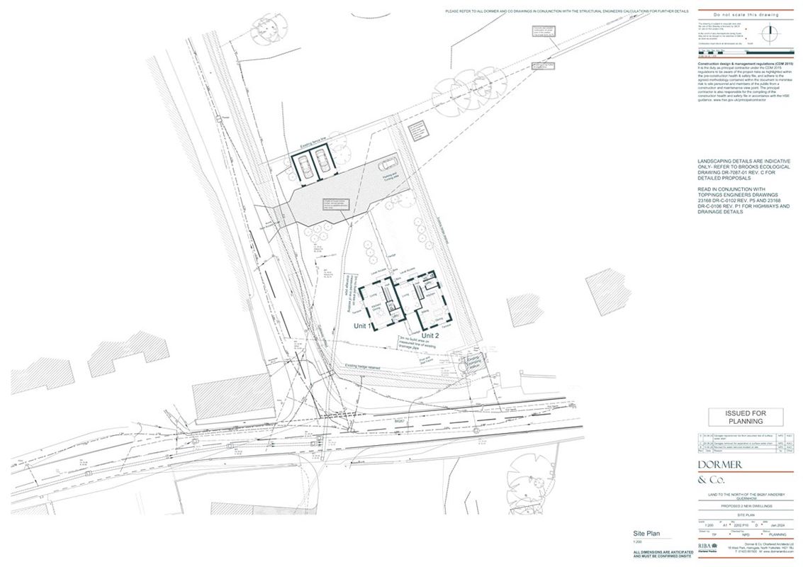
This small residential development site is situated in the heart of the village, just to the north of the B6267 with access off Sinderby Lane. The small village of Ainderby Quernhow is located 9 miles to the north east of Ripon and 7 miles to the west of Thirsk. The village is conveniently located within easy access of the A61 and A1(M), providing excellent transport links to Leeds, York, Harrogate and Teesside.

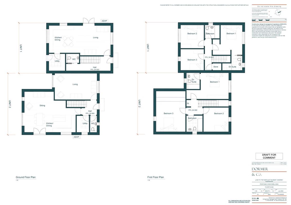
Detailed planning consent has been granted for the construction of 2 new dwellings on land to the north of the B6267.

Application Numbers – Outline 22/02051/OUT Reserved matters ZB24/00163/REM

Details relating to the planning permission and relevant plans can be viewed online on the North Yorkshire County Council planning portal. Alternatively, we can provide you with all of the documentation, on request.

Plot 1 - 1,260 sqft / 117 sqm - Semi Detached
Plot 2 - 1,680 sqft / 156 sqm - Semi Detached

For more detailed information, please contact Tony Wright at Carter Jonas.

The next steps...

Before making an offer on a property you will want to consider your financial situation, your income and outgoings.

Will you finance the purchase of your next property from the sale of an existing property which can put you in a chain, arrange a mortgage through your bank or buy the property outright.

To help you finance your next property purchase, we have a long established relationship with an independent mortgage broker who can discuss your situation with you.

Remember that having a 'mortgage decision in principle' can make you a more attractive buyer when you make an offer on a property. Contact our mortgage advisers for free, no obligation and impartial advice.

Some advantages of a broker are:

  • They do all the legwork for you, working on your behalf with the lender
  • They compare wholesale mortgage rates from a large number of banks and lenders all at once
  • Their wholesale interest rates can be lower than retail (bank branch) interest rates
  • They offer more loan options because they work with numerous banks and lenders
  • They can finance tricky deals because of their knowledge and various lending partners
  • They are typically easier to get in contact with, and are less bureaucratic.

However advantages of working with your bank are:

  • You may be able to build off an existing relationship (and gain discounts if you have a checking or savings account)
  • You may already know the banker who will handle your mortgage
  • Banks may be more accountable than a smaller shop
  • They may offer lower interest rates in some cases
  • Their ability to add mortgage to existing banking profile and make automatic payments from linked account.

When you see a property you are interested in on our website, call us 24/7 to arrange a viewing. Or if you prefer, get in touch via our website and we will call you back to find a time to view the property that suits you.

Once you’ve found a property you want to buy, it’s time to make an offer. A bit of negotiation is to be expected, however don't offer so little that you end up in a lengthy negotiation process, as you might lose the property altogether if someone else makes a higher bid.

If other offers have been made on a property we aren't legally able to tell you what they are, but we may indicate if they were close to the asking price.

If you have a property to sell, why not see how we can help you.

Or if you’re considering letting your property, we can take the stress out of managing your rental, and our award winning lettings team offer a service that can be tailored to your needs.

Combined with nearly 170 years of experience and one of the highest customer satisfaction scores in the industry, Carter Jonas is the perfect property partner.

Why not book a free, no obligation valuation of your property and find out how Carter Jonas can help you make your next move.

Key property details
Locality
Village
Tenure
Freehold
Carter Jonas reference
HAR240172

Suggested properties

Here are a few properties you might like, but within 2 extra miles of your current search

Guide price £350,000
3 bedroom house
Guide price £1,250,000
development plot
Guide price £895,000
4 bedroom house
Guide price £1,995,000
7 bedroom house
Offers over £300,000
4 bedroom house
Thinking of selling?

Find out what your property is worth